
"Archiline: 来自白俄罗斯的梦想家园"--出口面积为 90 平方米的木制房屋项目

如今,随着越来越多的人追求自然和环保,木制房屋越来越受欢迎。木制房屋不仅美观舒适,而且具有许多优点,是注重舒适和健康生活方式的人们的理想选择。因此,我们向您介绍白俄罗斯制造商 "Archiline "公司的一个项目--用胶合层压木材建造的木制房屋,它将成为您理想中的梦想家园。
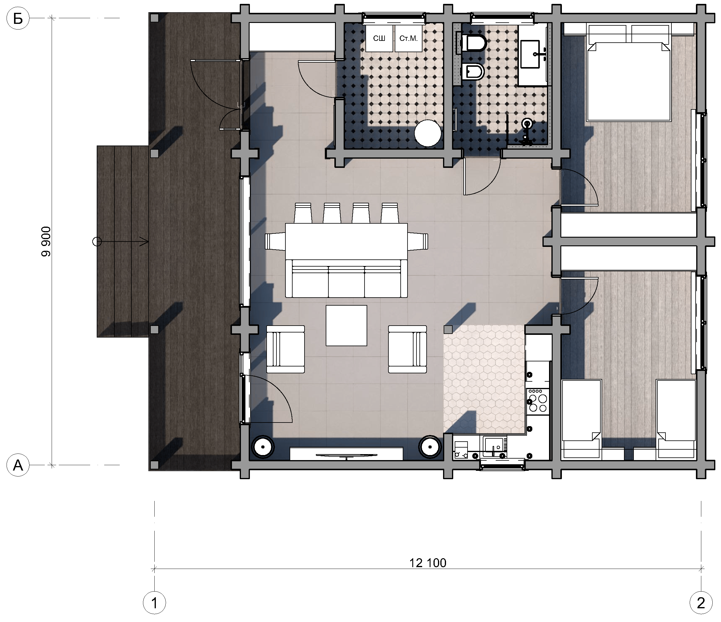
"Archiline: 您来自白俄罗斯的梦想之家 "是一个 90 平方米的木制房屋项目,带有一个 7 平方米的露台。屋内有一个厨房/起居室、两间卧室、一个公共浴室、一个炉房和一个入口大厅。天花板与屋顶齐平,给人一种宽敞自由的感觉。房屋的墙壁由 200 毫米的层压木材制成,具有很高的隔热性和结构耐用性。


项目使用的材料包括木材、陶瓷石器和玻璃,具有无与伦比的质量和美感。木材是一种环保材料,可为房屋营造舒适温暖的氛围。陶瓷石器是一种坚固耐用的材料,是浴室和厨房地面和墙壁的理想材料。玻璃则给人一种现代而优雅的感觉,让您足不出户就能欣赏到大自然的美景。
Archiline 是一家白俄罗斯木制房屋制造商,已成为可靠的优质供应商。我们提供从房屋设计到建造和装修的全方位服务。我们的目标是建造出满足您所有要求和愿望的房屋,让您自豪地称之为自己的家。
"Archiline: 来自白俄罗斯的梦想家园 "不仅仅是一座房子,更是您与大自然和谐共处,享受木制房屋舒适惬意的机会。不要错过实现梦想的机会!