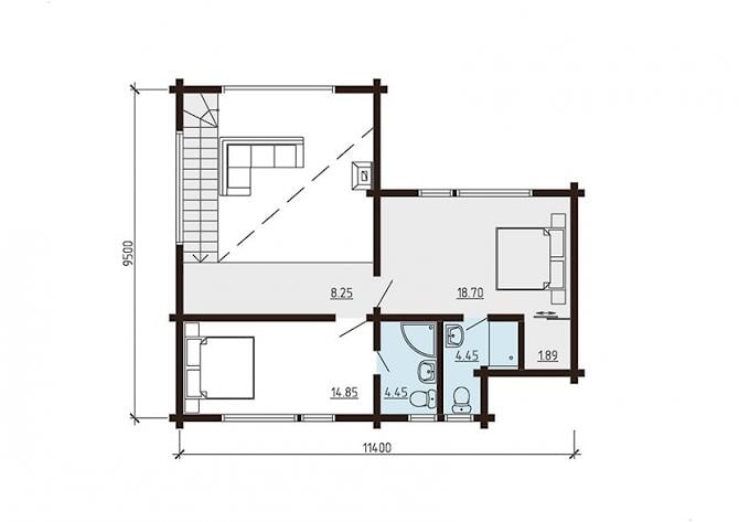
|  | 出口到阿尔及利亚山区的胶合木材木屋项目 - 价格要求 阿尔及利亚的山的木房子 我们引起您注意的房子项目来自胶合木材 “Aisha”,该项目计划在位于非洲北部的阿尔及利亚山区建造。 履行这一命令要求我们的专家深入研究阿尔及利亚的气候,地理和文化特征,因为重要的是将它们与木屋项目的轮廓联系起来。 我们不仅要完成任务,还要为我们的客户做更多的事情。 d erevyannye家不是典型阿尔及利亚,所以这种类型的建筑到周围风景的设计计算有机输注。 我们考虑到了居住在其中的人们的愿望,预见到了舒适和便利所需的一切。 此外,我们还面临着另一项同样重要的任务:组织交付房屋。 出口木屋是我们长期提供的服务,因此我们有足够的知识,经验和业务联系来开展这项业务。  阿尔及利亚的气候和地理特征 阿尔及利亚大约90%的领土被撒哈拉沙漠占领。在夏季,这里非常炎热,但在冬季,特别是在夜间,气温明显下降。在山区 - 在该国北部以及在东南部,情况有所不同。雪可以躺在山的高点,气温低于零。 阿尔及利亚的领土属于抗震类,在当地住宅建筑上留下了一定的印记。这些通常是由坚固的石头建造的一层两层房屋,通常可以在城市定居点外看到。在今天的城市,它们的建造是为了满足现代需求,无论在哪里使用玻璃,金属和混凝土。因此,有了这些信息,我们的专家就会开始工作。  客户来自阿尔及利亚 来自阿尔及利亚的客户出于各种原因选择了我们公司。 特别是,他们被出口木屋相对较低的成本所吸引。然而,对于签署合作协议的最终决定,这还不够。当然,客户对质量问题以及从白俄罗斯到阿尔及利亚的送货上门组织感兴趣。 因此,他们抵达白俄罗斯不仅要听,而且还要看到我们公司的高生产水平。因此,我们回答了广泛的问题,提供了支持与Archiline公司合作的论据,因为只有我们有机会为正在实施的项目的所有参与者创造有利条件。 所有这一切都得到了阿尔及利亚客户的赞赏,他们从他们所看到的地方完全钦佩他们的祖国,并且惊喜地发现,从建筑的角度来看, 木制房屋可以如此多功能,实用,美观和完美。 应该指出的是,我们的进一步沟通仍然是远程的。每日或根据需要,我们联系了阿尔及利亚客户或他们与我们联系,以澄清信息,技术信息,获得问题的答案,确认等。 幸运的是,随着现代通信技术的发展,很容易建立这种双向通信。因此,我们达到了一个新的业务合作水平,这使我们能够与客户合作,即使他们距离我们数千公里。 这也证明了我们已达到的新的信任水平,这意味着他们了解我们,他们希望与我们合作,这意味着在商业环境中,Archiline公司具有积极的特征。顺便说一下:我们一直努力加强形象,我们尽最大努力让客户满意, 木屋的建造带给他们快乐和满足。 木屋“艾莎”项目的特点 在山区建造的木屋必须满足各种参数,首先,在稳定性方面是可靠的,并且在住宅小区的微气候中是最佳的。稍微高一点,我们谈到地震活动,这解释了建筑师加强房屋基础的愿望,这已经完成了。 与此同时,这根本不会影响木屋的价值制定了相当标准的决策,技术和材料。至于小气候,由于木材 - 一种天然的材料,能够“呼吸”,在客厅形成一个气团,为人们提供舒适的住宿。 这也有助于自然通风系统。 我们的专家考虑了所有的细微差别,并得出结论,用于建造房屋的理想墙体材料将是成型的胶合层压木材 。确定最佳壁厚。由于显而易见的原因,“阿尔及利亚”房屋的墙壁比白俄罗斯木屋更薄,这是由该地区的气候造成的。 当然,这有助于实现项目的更低成本。正是由于这个原因,中东和非洲国家的居民与我们公司合作是有益的: 在白俄罗斯订购木屋是一项有利可图和合理的资金投入。 从白俄罗斯出口木屋对外国人来说很有吸引力,因为我们国家为此创造了所有条件。应该注意的是,这个木屋的项目可以使用其他类型的材料来实施 - 圆形原木或自然湿度的异形木材 。 来自原木或酒吧 的房屋的价格会有所不同,因此,只有在计算后才能获得具体的数字。 木材还具有优于石材的优势:特别是松木将挥发性物质排放到周围空间,与山地空气混合,形成非常有用的吸入混合物,从而形成人体健康的混合物。 因此,住在这样的房子不仅舒适,而且也很棒。木材,特别是在白俄罗斯森林中采伐,是环保的,因此建议用于一般建筑。我们更多地使用松树,它具有许多优点: - 松树易于加工; - 借助粘合剂将刨光表面牢固连接; - 松树含有大量树脂和精油,可以治愈空气; - 相对便宜的建筑材料。 木屋 “Aisha”完全符合舒适度的要求。你可以全年生活,不用担心额外的现代化,由于气候变化导致其改善。 这是一个适合5-6人的舒适住宿,这里有大型城市建造的现代公寓的所有特征,条件是房屋本身将位于山区的高处。 我们创建它考虑到任何不利情况的发展,因此这个房子能够为居民提供一个完全舒适的自主存在很长一段时间。同意我们这个时代的这个方面是非常自然和重要的。 该项目包括:三间宽敞的卧室(二楼两间),一间舒适的厨房,一间配有壁炉的起居室,一间可供5-6人使用的桑拿浴室以及一间毗邻入口右侧房屋的露台,您可以在那里安排休息,喝茶等。 。房子通过大窗户照亮。 这样做有两个原因:大窗户是现代潮流,在阿尔及利亚早期仍然天黑,所以即使黄昏开始,很多自然光也会渗入木屋 。此外,由于窗户,房间的内部空间扩大,从视觉上看起来更宽敞。 “艾莎”项目木材的住宅面积为131.79平方米,一楼面积为79.2平方米,二楼面积为52.59平方米。露台面积为22.46平方米。 “艾莎”项目的优势 木屋“Aisha”的项目具有许多设计特征,使其与其他类似的设计区别开来。特别是,房间的布局考虑到空气的自由运动,因此温度和湿度的最佳平衡始终保持在房屋内部 。 值得注意的是,这座木屋建在一个每年都有很多晴天的国家,加热墙壁和屋顶的事实也不容忽视。 为了最大限度地减少这种情况,选择了胶合层压木材 ,由于其复合结构,它是热和冷的良好障碍。为了减少紫外线对木材的负面影响,房屋覆盖着高度抗褪色的油漆。 结果是一个舒适耐用的房屋在运营,此外,其建设成本低于阿尔及利亚的标准,这使得这个木屋非常吸引当地人购买。 正如我们上面已经写过的那样,房子的墙壁是由层压单板木材制成 - 高品质的材料。我们特别考虑到了该国的气候特征,因此我们选择了这种粘合剂组合物来粘合木质元素,形成坚固的木梁 ,在高温下获得相当大的强度。 此外,阿尔及利亚的湿度相当高,正如您所知,这是影响木材的不利因素之一。 这就是为什么即使在最初阶段,房屋的所有木制元素都经过彻底的深层渗透防腐处理。重要的是要注意,这些物质是由环保成分制成的,因此不会对环境或人类产生有害影响。 因此,我们向阿尔及利亚人证实了白俄罗斯公司“Archiline”关注所有方面,与客户合作的论点。 如何通过“Archiline”公司出口木屋? 我们公司生产高质量木材建筑材料,设计木屋 ,将其运送到现场并随后安装,不仅与白俄罗斯的客户合作,而且还与西欧,中东和非洲的国家的客户合作。 对我们来说, 出口木屋是一个简化的过程,涉及训练有素的工作人员我们的木屋是符合国际标准的产品,其质量得到欧洲认证。公司“Archiline”是一个具有高生产和出口潜力的组织,能够实现复杂和大规模的任务。 我们精心挑选公司员工,教授和培训他们,以便在Archiline工作的每个人都是他所在领域的真正专业人士。我们理解这是我们重视的企业形象。我们的保证不仅仅是指控,而是对所有后续要求的责任,责任,因此在木屋生产的每个阶段,我们都要确保这些词语不会与案件分歧。 “Archiline”公司保证木质房屋 ,建筑材料的优质项目 - 天然水分的异形木材 , 胶合木材 , 圆木 , 木材组装(安装工作)( 木材 )。我们有效执行的另一项服务是木屋出口 。关于她,将在下面讨论。 出口是一套流程和任务,根据众多国际要求实施,有权成功交付产品并向国外市场提供服务。不能有一半的措施可以限制。 在我们的情况下,只有符合所有海关规定和交付国家的规则, 木屋才会出口。我们理解这一点,因此只有我们最好的专家参与此案。 木屋是一种特殊的产品。它们是由天然来源的材料制成,因此受到环境的影响,包括负面影响。 出口木屋时需要考虑许多其他功能。 例如, 出口是可能的,考虑到交付房屋所在国家采用的节能系数(有必要在设计阶段确定墙体的厚度);还有必要准备好随附的文件;需要有经验的申报人的工作;非常重要的是选择车辆,以便及时交付完成的房屋并且没有损坏。 为什么我们对此如此敏感? 有很多原因。其中之一是木材。它可以在环境的影响下发生变化。这些变化通常并不重要,但可以带来一些超出既定国际标准的参数。 因此,将木屋从一个气候环境出口到另一个气候环境,使其不影响所生产的产品只能是知识渊博的专家。 通过将房屋从阿尔及利亚Aisha项目制造的木材中运出 ,我们将评估所有类型的运输,包括最快的空运。 我们为什么需要它?减少水分和温度对木材的负面影响。是的,在家庭出发之前, 酒吧的每个木制部分都将用防腐剂和其他方法处理。我们正在寻找,计算和寻找出口木屋的最佳选择。 沿途的任何延误都会增加与维护房屋原始形式相关的风险,因此在这种情况下,正确的文件准备也是有价值的。只有我们的专家能够对今天“Archiline”公司所在地的情况采取主管,才能在世界各国看到。 与“Archiline”公司合作的优势 - 保证高品质的产品: - 原木制的房屋 ,胶合木材的房屋,天然水分的木材房屋 ; - 白俄罗斯共和国便利的地理位置和发达的运输基础设施,可以快速将产品运送到地球上最偏远的地方; - 我公司拥有与国外客户互利合作的一切必要条件; - 我们不仅要告诉,还要展示在“Archiline”公司的生产设施中实施的技术结构; - 我们随时准备就建筑,木屋安装,出口供应等所有事宜提供咨询; ; - 从梁等 木制房屋, 回家吧, 从一个木屋, 别墅 -我们提供一系列不同的产品。 - 我们有一个广泛的基地,包含木屋项目; - 准备为施工现场提供框架以进行复杂的工作: 木屋的装修,木屋的 隔热,木屋的 涂漆,木屋的护套等; - 我们考虑到客户的意愿,并始终建议他们如何做得更好,更漂亮,更友善,更可靠; - “Archiline”公司多年来一直致力于建筑市场,并在此期间成功地形成了一个积极的企业形象,赢得了行业专业人士和众多客户的尊重,包括外国客户; - 我们与许多公司保持业务往来,这些公司帮助我们开展工作,特别是交通工具,这些工作随时准备在任何国家发送木屋 ; - 我们不要求客户提供第100笔预付款; - “Archiline”公司是出口符合国际标准的木制房屋 。 如何与我们建立合作关系? 最简单的方法是联系将回答您所有问题的公司经理。然后它仍然只是根据已开发的方案行事。它包括以下项目: - 墙壁材料的选择(我们提供一种选择 - 圆形原木,自然湿度的异形木材和胶合层压木材); - 在我们的数据库中开发个人或使用木屋项目; - 家居装饰的选择(在某些情况下,选择最大配置没有意义,因为房屋的一些元素,例如屋顶材料,是我们从欧盟国家进口的,因此在现场购买以避免双重征税更为便利); - 向我们公司发送申请; - 通过一段时间完全计算我们的服务成本。 木房子的价格 我们不能马上说这个或那个房子会花多少钱,甚至是出口服务。事情是这样的:对我们来说,与客户进行建设性的实质性对话非常重要,我们并不是试图通过称他为木屋的低价来误导客户。 如果我们承诺建造一个交钥匙的木屋 ,那么我们就这样做,但最初我们协调与客户的工作成本。最终成本受以下因素影响: - 设备类型; - 墙壁材料类型; - 壁厚; - 房子的地板; - 木屋项目 - 个人发展或标准; - domokomplekt送货地址; - 运输木屋的运输类型 36 We speak english, russian and german:+375298-06-05-67 — WhatsApp, Viber, TelegramMira más:Puedes ver una reseña en video de la casa de madera "Casa Blanca" de madera laminada encolada Archiline Houses: Puede ver una revisión en video de la casa de madera "Mirage": Si deseas comprar 出口到阿尔及利亚山区的胶合木材木屋项目 - 价格要求  , puedes: Más de la sección 木屋150至200平方米的项目 | 
| © 2025 
ArchiLine Wooden Houses 114-49, Necrasov str., Minsk, Republic of Belarus, 220049 El sitio funciona con Nestorclub.com | |