| 
 | 
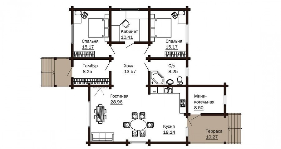
दो बेडरूम के साथ टुकड़े टुकड़े में लिबास से बने ग्रे लकड़ी के घर, परियोजना "स्वास्थ्य" 130 m2    स्वास्थ्य "- घर का कुल क्षेत्रफल 129.5 m2 है, जिसमें से 109.7 m2 जीवित क्षेत्र है। इस घर के निर्माण के लिए, 78 m3 दीवार सामग्री की आवश्यकता होती है, जो कि घर की चौड़ाई, लंबाई और ऊँचाई को देखते हुए, इतना अधिक नहीं है। आर्किटेक्ट एक रंग योजना खोजने में कामयाब रहे। घर के लिए: नरम टन इसे वास्तव में आरामदायक, आकर्षक, दिलचस्प, वांछनीय बनाते हैं। घर की योजना:  | ||||||||
| कुल क्षेत्रफल | 129,5 m2 | 
| रहने के जगह | 109,7 m2 | 
| रहने वाले कमरों की संख्या | 4 | 
| दीवार सामग्री की मात्रा - सरेस से जोड़ा हुआ बीम, अनुभाग 200x200 mm | अनुरोध पर | 
 लकड़ी के घर "स्वास्थ्य" के वास्तुशिल्प और कलात्मक समाधान में एक आधुनिक और आकर्षक छवि का निर्माण शामिल है। जटिल आकार घर को धारणा के लिए दिलचस्प बनाता है और रहने के लिए आरामदायक है। कुल क्षेत्रफल 129.5 m2 है, जिसमें से 109.7 m2 आवासीय हैं। 
 
 स्नान: 
 
 इस परियोजना में एक आरामदायक परिवार के रहने के लिए सब कुछ है: एक विशाल कमरे में एक रसोईघर, दो आरामदायक बड़े बेडरूम, एक कार्यालय, एक मिनी बॉयलर रूम, एक हॉल, एक बाथरूम और एक छत के साथ संयुक्त। घर में दो प्रवेश द्वार डिज़ाइन किए गए हैं: छत से, रसोई या मिनी-बॉयलर रूम में प्रवेश करना, और हॉल में एक संगठित वेस्टिबुल के माध्यम से। सीधे हॉल से आप घर के सभी परिसर में पहुंच सकते हैं। घर की आंतरिक जगह आंदोलन के लिए स्वतंत्र है और उन्मुख करने के लिए आसान है: 
 यह परियोजना सबसे अच्छे तरीके से दिखाती है कि कैसे, संक्षिप्त रूप से और सामंजस्यपूर्ण रूप से टुकड़े टुकड़े में लकड़ी के घर के आंतरिक स्थान को व्यवस्थित किया जाए। सजावट के हल्के, गर्म स्वर और ऊंची छतें आंतरिक कोमलता और वायुहीनता देती हैं, जिससे असीमित स्थान की भावना पैदा होती है। बड़ी खिड़कियां बहुत रोशनी में रहने देती हैं, जिससे प्रकृति के साथ रहने की जगह की एक दृश्य एकता को प्राप्त करना संभव हो गया है, जिससे यह प्रकाश, ताजा और देखने के लिए सुखद है: 
 आराम से सुसज्जित रहने वाले कमरे में, आप पूरे परिवार को एक आरामदायक छुट्टी के लिए इकट्ठा कर सकते हैं या मेहमानों को आमंत्रित कर सकते हैं और एक बड़ी कंपनी में मज़े कर सकते हैं, क्योंकि सभी के लिए पर्याप्त जगह है! इंटीरियर की रंग योजना एक सुखद शगल के लिए अनुकूल है, फायरप्लेस की गर्मी का आनंद लेने और आग की लौ की प्रशंसा करने का अवसर भी है: 
 
 
 
 
 
 
 







 
 
 
 
 
 
 
 
 
 
 
  
  
  
  Puedes ver una reseña en video de la casa de madera "Casa Blanca" de madera laminada encolada Archiline Houses:
Puede ver una revisión en video de la casa de madera "Mirage":