x
≡ Catalogar
Sobre nosotros Galería Contáctenos

"Güneşli Orman" teraslı bir bardan ev, 164 metrekare

"Güneşli Orman" teraslı bir bardan ev, 164 metrekare  "Güneşli Orman" teraslı evde 4 yatak odası, 2 banyo ve oturma odası mutfak bulunmaktadır. Proje özel inşaat için uygun olup, otel kitleri ve devremülklerin yapımında da kullanılabilir.
....................................................................................................................................................................................................
.
TEMEL BİLGİLER:

Kat sayısı:2Yatak odası sayısı4
Yaşam alanı92,01 m2Tüm katların taban alanı:166,99 m2
Teras ve balkon alanı:15,79 m2Çatı alanı:199 m2
İnşa alanı:139 m2Fiyat:по запросу
Duvar malzemesi:Profilli yapıştırılmış kirişler (200x200 mm) *
Çatı malzemesi:Seramik çatı kiremitleri *
Yapı temeli:Monolitik levhalı kazık ızgara *
Pencere:Ahşap *
* Malzemeler müşterinin isteğine göre değişiklik gösterebilir.


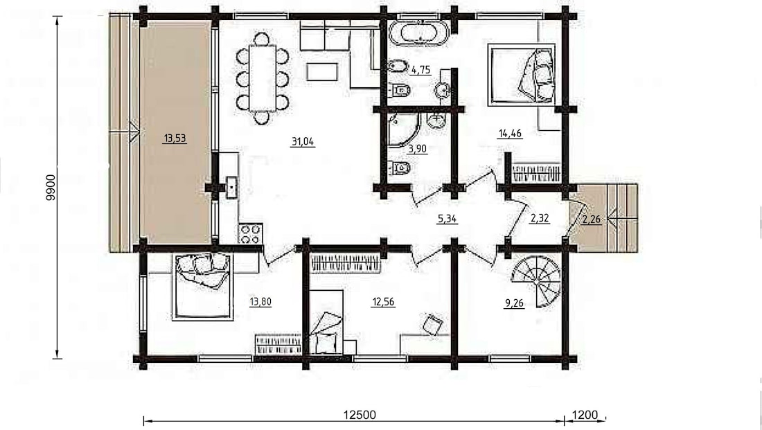
EV PLANI:
.
Zemin katta: bir giriş, terasa erişimi olan geniş bir mutfak-oturma odası, bir banyo, 3 yatak odası vardır:
.

.
İkinci katta: ayrı banyolu bir yatak odası ve bir ofis:
.

.
PROJENİN KISA AÇIKLAMASI:
.
"Güneşli Orman" teraslı ev, Polonya'da "Kalinowe Pola" golf kulübü topraklarında inşa edilmiştir ve katı Avrupa çevre ve inşaat standartlarına tamamen uygundur.
Genel olarak, proje özlü, ferah, aydınlık, prestijli, açık alanlar ve geniş bir cam alanı ile ortaya çıktı. Ve lamine kaplama keresteden yapılmış duvarlar ve basit konstrüksiyon sayesinde ev mümkün olan en kısa sürede inşa edildi.
Aynı şeyi inşa etmek isterseniz, sunulan projeye göre "anahtar teslimi" inşaatın toplam maliyeti 490 ila 700 USD olabilir. temel, duvarlar, çatı, çatı keki, pencere ve kapılar, zeminler, tavan ve çatı saçakları, teraslar, elektrik ve sıhhi tesisat, evin komple boyanması ve antiseptiklerle koruma dahil m² başına. Öyle ya da böyle, fiyat değişebilir - tüm malzemeler ve bileşenler sizin tarafınızdan seçilir.
.
GÖRÜNÜM:
.
Ahşap duvarların dokusu, karanlık ve kaide ve kiremit ile mükemmel uyum içindedir. Geniş cam alanı, eve görsel hafiflik katar ve ana odalardan güzel manzaralar sunar. Basit dikdörtgenlerden trapezlere kadar ahşap çerçevelerdeki pencerelerin çeşitli geometrisi, binanın görüntüsünü dinamik hale getirir:

.
.
Teraslı ev, geniş bir arsanın topraklarına uyumlu bir şekilde uyar. Çevre düzenlemesi, bölgenin doğal güzelliğini ve evin mimarisini vurgulayan ücretsiz bir peyzaj tarzında gerçekleştirilir:
Polonya'da lamine kaplama keresteden yapılmış anahtar teslimi ahşap ev
.
Polonya'da lamine kaplama keresteden yapılmış anahtar teslimi ahşap ev .
Bu arada, evin yanı sıra sitede bir garaj ve sauna var ve ayrıca çevre ile iyi uyum sağlıyorlar:

.

.

.
EVDE FOTOĞRAF GEZİSİ:
.
Kuşkusuz evin ana odası geniş bir mutfak-oturma odası, buradan başlıyoruz. İkinci ışık sayesinde oda olabildiğince açık, parlak ve yüksek görünür:

.

.

.
Şömine her odaya özel bir rahatlık katar:

.
.

.

.

.
Aydınlık koridordaki oturma odasından kendimizi evin geri kalan odalarında buluyoruz:

.
En-suite banyolu geniş yatak odası:
.
.

.
Banyo şık ve modern görünüyor:

.

.

.
İkinci yatak odası:


Birinci kattaki başka bir yatak odası:

.
Daha yüksek bir seviyeye yükseliyoruz. Neredeyse hiç iç bölme içermeyen ikinci katın alanı, bir yatak odası, bir dinlenme alanı, bir ofis ve bir banyoyu birleştirdi. Böyle ücretsiz bir düzende, sahiplerden ve aile üyelerinden herhangi biri veya bir misafir, her zevke uygun rahat bir eğlence için kendi gözlerden uzak köşelerini bulacaktır:

.

.
Huzur içinde çalışabileceğiniz bir ofis:

.

.
Ofisten oturma odasının standart olmayan bir görünümü açılır:


48


Bina tipi
iki katlı ev
Yatak odası sayısı
4
Duvar malzemesi
yapıştırılmış lamine ahşap
Özellikleri:
çalışma ile ev, teraslı ev


We speak english, russian and german:

+375298-06-05-67 WhatsApp, Viber, Telegram

Mira más:

Puedes ver una reseña en video de la casa de madera "Casa Blanca" de madera laminada encolada Archiline Houses:

Puede ver una revisión en video de la casa de madera "Mirage":

If you want to buy "Güneşli Orman" teraslı bir bardan ev, 164 metrekare , you can:



More from section EN İYİ 30 AHŞAP EVLER

  • Özellikleri: :teraslı ev
  • Bina tipi: tek katlı ev
  • Yatak odası sayısı: 1
  • Duvar malzemesi: ahşap kütük
"Mimar" ahşap bir kütük evin güzel bir projesidir: boyut, fiyat ve kalitenin mükemmel kombinasyonu. Küçük malzeme, para ve zaman maliyetleri ve çıkışta - komşuların kıskanacağı bir kütük ev. ...
  • Özellikleri: :teraslı ev
  • Bina tipi: tek katlı ev
  • Yatak odası sayısı: 1
  • Duvar malzemesi: ahşap kütük
"Kulübe" kütük ev sıradan görünen bir evdir, ancak aynı zamanda bir kişinin veya ailenin rahatça yerleşmesine ve kendi zevkleri için yaşamasına izin veren tam işlevsel özelliklere ve niteliklere sahiptir. ...
  • Özellikleri: :teraslı ev, :çalışma ile ev, :balkonlu ev
  • Bina tipi: iki katlı ev
  • Yatak odası sayısı: 2
  • Duvar malzemesi: yapıştırılmış lamine ahşap
Geniş bir balkona sahip "Fayda" profilli ahşaptan yapılmış ahşap bir ev, 3-4 kişilik bir aile için gerçek bir keşif olacaktır, çünkü bu proje, birçoğunun uzun zamandır aradığı "altın araç" dır. ...
  • Özellikleri: :teraslı ev, :saunalı ev, :kalça çatı evi
  • Bina tipi: tek katlı ev
  • Yatak odası sayısı: 3
  • Duvar malzemesi: profilli kereste
"Coffee House" dağ evi tarzında bir kütük ev, hem geçici hem de kalıcı ikamet için mükemmeldir. Üç oda, mutfak, oturma odası, sauna - tüm bunlar 4-6 kişilik bir aile için idealdir. ...
  • Özellikleri: :teraslı sauna
  • Bina tipi: iki katlı ev
  • Yatak odası sayısı: 4
  • Duvar malzemesi: yapıştırılmış lamine ahşap
"Yeni Tarla" - teraslı geniş bir ahşap ev, büyük bir aile için mükemmeldir. Bu evde herkes kendi rahat köşesini (4 yatak odası kadar) bulacak ve mutfak-oturma odası dostça aile toplantıları için bir yer olacak. ...
  • Özellikleri: :teraslı ev
  • Bina tipi: tek katlı ev
  • Yatak odası sayısı: 2
  • Duvar malzemesi: yapıştırılmış lamine ahşap
Yapıştırılmış kirişlerden yapılmış bir ahşap ev "Ukrayna" kır tatili için küçük bir ev arayanlar için ideal bir çözümdür. 3-4 kişilik hem geçici hem de kalıcı ikamet için ihtiyacınız olan her şeye sahiptir. ...
  • Özellikleri: :teraslı ev, :balkonlu ev, :saunalı ev
  • Bina tipi: iki katlı ev
  • Yatak odası sayısı: 4
  • Duvar malzemesi: yapıştırılmış lamine ahşap
Lamine kaplama keresteden yapılmış ev "Air", geniş ve samimi bir aile için beyaz ahşap bir evdir. Yüksek düzeyde konfor ile karakterizedir, bu nedenle konak, mimari çözümlerin ve stillerin gerçek uzmanları tarafından takdir edilecektir. ...
  • Özellikleri: :çalışma ile ev, :garajlı ev
  • Bina tipi: iki katlı ev
  • Yatak odası sayısı: 3
  • Duvar malzemesi: profilli kereste
Ahşap ev "Adelweiss" şunları içerir: 3 yatak odası, 48 m2 yemek-oturma odası ve iki banyo. Böyle bir ev, geniş ve arkadaş canlısı bir ailenin daimi ikametgahı için mükemmeldir. ...
  • Özellikleri: :teraslı ev, :kalça çatı evi
  • Bina tipi: tek katlı ev
  • Yatak odası sayısı: 2
  • Duvar malzemesi: profilli kereste
Tek katlı ahşap ev "Sıcak ev", yazlık olarak küçük bir ev veya 3-4 kişilik bir aile için kalıcı konut arayanlar için ideal bir seçenektir. Rahat yerleşim düzeni, geniş teras, konforlu bir yaşam için her şey burada. ...
  • Özellikleri: :teraslı ev, :balkonlu ev
  • Bina tipi: iki katlı ev
  • Yatak odası sayısı: 3
  • Duvar malzemesi: profilli kereste
Teraslı "Mutluluk" ahşap ev, kalıcı ikamet için geniş ve ferah bir ev arayanlar için mükemmel bir çözümdür. Üç yatak odası, birleşik bir mutfak-oturma odası, böyle bir ev, arkadaş canlısı bir aileyi kolayca ağırlayabilir. ...
  • Özellikleri: :teraslı ev, :saunalı ev, :balkonlu ev
  • Bina tipi: iki katlı ev
  • Yatak odası sayısı: 1
  • Duvar malzemesi: ahşap kütük
Fin Teras Evi "Helsinki", kır evi veya hamam olarak kullanılacak küçük bir ev arayanlar için mükemmeldir. ...
  • Özellikleri: :teraslı ev, :kalça çatı evi, :garajlı ev, :çalışma ile ev
  • Bina tipi: iki katlı ev
  • Yatak odası sayısı: 3
  • Duvar malzemesi: yapıştırılmış lamine ahşap
"Romuald" lamine kaplama kereste evi Polonyalı bayimiz Romuald tarafından Varşova banliyölerinde inşa edildi. Bir sundurmaya sahip bu kütük kır evi, banliyölerde 4-6 kişilik bir aile için idealdir. ...
© 2025 ArchiLine Wooden Houses
114-49, Necrasov str., Minsk, Republic of Belarus, 220049
                                              

The site is powered by Nestorclub.com