x
≡ Catalogar
Sobre nosotros Galería Contáctenos

İki yatak odalı "Sağlık" gri ahşap ev

İki yatak odalı "Sağlık" gri ahşap ev  Yapıştırılmış kirişlerden yapılmış gri bir ahşap ev "Sağlık" tek katlı, ancak iyi bir yerleşim planına sahip çok geniş bir ahşap evdir. Bu proje 3-5 kişilik geniş bir aileyi rahatlıkla barındıracaktır.
....................................................................................................................................................................................................
.
TEMEL BİLGİLER:

Kat sayısı:1Yatak odası sayısı2
Yaşam alanı30,18 m2Tüm katların taban alanı:126,49 m2
Teras ve balkon alanı:13,93 m2Çatı alanı:232 m2
İnşa alanı:166 m2Fiyat:istek üzerine
Duvar malzemesi:Profilli yapıştırılmış kirişler (200x200 mm) *
Çatı malzemesi:Seramik çatı kiremitleri *
Yapı temeli:Monolitik levhalı kazık ızgara *
Pencere:Ahşap *
* Malzemeler müşterinin isteğine göre değişiklik gösterebilir.


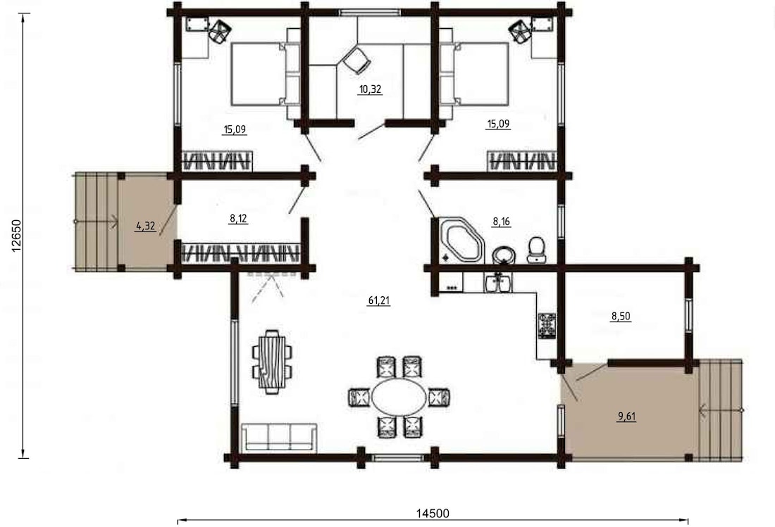
EV PLANI:
.
Zemin katta: bir giriş, bir salon, bir fırın, iki yatak odası ve bir çalışma odası, terasa erişimi olan bir mutfak-oturma odası vardır:
.
.
GÖRÜNÜM:
.
"Sağlık" ahşap evin mimari ve sanatsal çözümü, modern ve çekici bir görüntünün yaratılmasını içerir. Karmaşık şekli, evi algı açısından ilginç ve yaşam için rahat hale getirir:

.
Yapıştırılmış lamine ahşap ev
.
Projenin bir özelliği, farklı şekil ve boyutlarda pencerelerdi - cepheleri görsel olarak daha hafif hale getirdiler ve iç mekanların maksimum aydınlatmasını sağladılar. Yaşam alanlarındaki küçük pencereler yeterli bir doğal ışık kaynağı olmasa da, görsel olarak tavanın yüksekliğini artırır ve boş bir duvarın etkisini etkisiz hale getirir:

.
Yapıştırılmış lamine ahşap ev
.
EV FOTOĞRAF GEZİSİ:
.
Sundurma ile başlayalım. Evin iki girişi vardır: terastan ve organize bir girişten:
.
Tambur:

.
Giriş holünden evin tüm binalarına erişebildiğimiz salona giriyoruz. Bu proje, iç mekanın yetkin, özlü ve uyumlu bir şekilde nasıl organize edileceğini en iyi şekilde gösterir. Ev şartlı olarak iki bölüme ayrılmıştır: kamu ve özel:

.
Birincisinde birleşik bir mutfak-oturma odası, ikincisinde ise bir çalışma odası, iki yatak odası ve bir banyo var:

.
.
Rahat bir şekilde döşenmiş bir oturma odasında, dinlendirici bir tatil için tüm aileyi bir araya toplayabilir veya misafirleri davet edip büyük bir şirkette eğlenebilirsiniz çünkü herkese yetecek kadar yer var! İç mekanın renk şeması hoş bir eğlenceye elverişlidir, ayrıca şöminenin sıcaklığının tadını çıkarma ve ateş alevine hayran olma fırsatı da vardır:

.

.
Yapıştırılmış lamine ahşap ev .

.
Hafif, sıcak tonlarda dekorasyon ve yüksek tavanlar, iç mekana yumuşaklık ve ferahlık vererek sınırsız bir alan hissi yaratır. Büyük pencereler bol miktarda ışık alır, bu da yaşam alanının doğa ile görsel bütünlüğünü sağlamayı mümkün kılarak onu hafif, ferah ve algılanması keyifli hale getirir:

.
.
Yapıştırılmış lamine ahşap ev
.

.
Evle birlikte sitede bir hamam da bulunmaktadır:
İki yatak odası ile gri ahşap ev. Sağlık Projesi
.
Bu hamamın detaylı bir incelemesi burada bulunabilir.

Havuz ve teras ile yapıştırılmış lamine ahşap banyo. Poseidon Projesi 47 m². Belarus
Havuz ve teras ile yapıştırılmış lamine ahşap banyo. Poseidon Projesi 47 m². Belarus

13


Bina tipi
tek katlı ev
Yatak odası sayısı
2
Duvar malzemesi
yapıştırılmış lamine ahşap
Özellikleri:
çalışma ile ev, teraslı ev


We speak english, russian and german:

+375298-06-05-67 WhatsApp, Viber, Telegram

Mira más:

Puedes ver una reseña en video de la casa de madera "Casa Blanca" de madera laminada encolada Archiline Houses:

Puede ver una revisión en video de la casa de madera "Mirage":

If you want to buy i̇ki yatak odalı "Sağlık" gri ahşap ev , you can:



More from section EN İYİ 30 AHŞAP EVLER

  • Özellikleri: :teraslı ev
  • Bina tipi: tek katlı ev
  • Yatak odası sayısı: 1
  • Duvar malzemesi: ahşap kütük
"Kulübe" kütük ev sıradan görünen bir evdir, ancak aynı zamanda bir kişinin veya ailenin rahatça yerleşmesine ve kendi zevkleri için yaşamasına izin veren tam işlevsel özelliklere ve niteliklere sahiptir. ...
  • Özellikleri: :teraslı ev, :çalışma ile ev, :balkonlu ev
  • Bina tipi: iki katlı ev
  • Yatak odası sayısı: 2
  • Duvar malzemesi: yapıştırılmış lamine ahşap
Geniş bir balkona sahip "Fayda" profilli ahşaptan yapılmış ahşap bir ev, 3-4 kişilik bir aile için gerçek bir keşif olacaktır, çünkü bu proje, birçoğunun uzun zamandır aradığı "altın araç" dır. ...
  • Özellikleri: :teraslı ev, :saunalı ev, :kalça çatı evi
  • Bina tipi: tek katlı ev
  • Yatak odası sayısı: 3
  • Duvar malzemesi: profilli kereste
"Coffee House" dağ evi tarzında bir kütük ev, hem geçici hem de kalıcı ikamet için mükemmeldir. Üç oda, mutfak, oturma odası, sauna - tüm bunlar 4-6 kişilik bir aile için idealdir. ...
  • Özellikleri: :teraslı sauna
  • Bina tipi: iki katlı ev
  • Yatak odası sayısı: 4
  • Duvar malzemesi: yapıştırılmış lamine ahşap
"Yeni Tarla" - teraslı geniş bir ahşap ev, büyük bir aile için mükemmeldir. Bu evde herkes kendi rahat köşesini (4 yatak odası kadar) bulacak ve mutfak-oturma odası dostça aile toplantıları için bir yer olacak. ...
  • Özellikleri: :teraslı ev
  • Bina tipi: tek katlı ev
  • Yatak odası sayısı: 2
  • Duvar malzemesi: yapıştırılmış lamine ahşap
Yapıştırılmış kirişlerden yapılmış bir ahşap ev "Ukrayna" kır tatili için küçük bir ev arayanlar için ideal bir çözümdür. 3-4 kişilik hem geçici hem de kalıcı ikamet için ihtiyacınız olan her şeye sahiptir. ...
  • Özellikleri: :teraslı ev, :balkonlu ev, :saunalı ev
  • Bina tipi: iki katlı ev
  • Yatak odası sayısı: 4
  • Duvar malzemesi: yapıştırılmış lamine ahşap
Lamine kaplama keresteden yapılmış ev "Air", geniş ve samimi bir aile için beyaz ahşap bir evdir. Yüksek düzeyde konfor ile karakterizedir, bu nedenle konak, mimari çözümlerin ve stillerin gerçek uzmanları tarafından takdir edilecektir. ...
  • Özellikleri: :çalışma ile ev, :garajlı ev
  • Bina tipi: iki katlı ev
  • Yatak odası sayısı: 3
  • Duvar malzemesi: profilli kereste
Ahşap ev "Adelweiss" şunları içerir: 3 yatak odası, 48 m2 yemek-oturma odası ve iki banyo. Böyle bir ev, geniş ve arkadaş canlısı bir ailenin daimi ikametgahı için mükemmeldir. ...
  • Özellikleri: :teraslı ev, :kalça çatı evi
  • Bina tipi: tek katlı ev
  • Yatak odası sayısı: 2
  • Duvar malzemesi: profilli kereste
Tek katlı ahşap ev "Sıcak ev", yazlık olarak küçük bir ev veya 3-4 kişilik bir aile için kalıcı konut arayanlar için ideal bir seçenektir. Rahat yerleşim düzeni, geniş teras, konforlu bir yaşam için her şey burada. ...
  • Özellikleri: :teraslı ev, :balkonlu ev
  • Bina tipi: iki katlı ev
  • Yatak odası sayısı: 3
  • Duvar malzemesi: profilli kereste
Teraslı "Mutluluk" ahşap ev, kalıcı ikamet için geniş ve ferah bir ev arayanlar için mükemmel bir çözümdür. Üç yatak odası, birleşik bir mutfak-oturma odası, böyle bir ev, arkadaş canlısı bir aileyi kolayca ağırlayabilir. ...
  • Özellikleri: :teraslı ev, :saunalı ev, :balkonlu ev
  • Bina tipi: iki katlı ev
  • Yatak odası sayısı: 1
  • Duvar malzemesi: ahşap kütük
Fin Teras Evi "Helsinki", kır evi veya hamam olarak kullanılacak küçük bir ev arayanlar için mükemmeldir. ...
  • Özellikleri: :teraslı ev, :kalça çatı evi, :garajlı ev, :çalışma ile ev
  • Bina tipi: iki katlı ev
  • Yatak odası sayısı: 3
  • Duvar malzemesi: yapıştırılmış lamine ahşap
"Romuald" lamine kaplama kereste evi Polonyalı bayimiz Romuald tarafından Varşova banliyölerinde inşa edildi. Bir sundurmaya sahip bu kütük kır evi, banliyölerde 4-6 kişilik bir aile için idealdir. ...
  • Özellikleri: :teraslı ev
  • Bina tipi: tek katlı ev
  • Yatak odası sayısı: 2
  • Duvar malzemesi: yapıştırılmış lamine ahşap
İki katlı geniş ahşap ev "Mirage" iyi bir düzene, basit ve işlevsel, modern ve ekolojik malzemelere, güzel bir görünüme sahiptir. Ev, rahatlığa ve rahatlığa değer veren geniş bir aile için mükemmeldir. ...
© 2026 ArchiLine Wooden Houses
114-49, Necrasov str., Minsk, Republic of Belarus, 220049

The site is powered by Nestorclub.com