
木制原木小屋327m²白俄罗斯,明斯克,项目“木屋”
私人乡间别墅的项目有一个大露台,双车库,四个房间和一个酒窖。
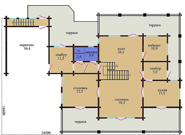
房子的居住面积为93.21平方米,总面积是327.73平方米的三倍多。
明亮色彩的立面与屋顶上的深色瓷砖融为一体,并且可以调节和平。这栋房屋的墙壁由直径为26厘米的圆形原木制成,但是,根据客户的要求,其他材料也是可以的。开发的项目考虑了各个方面,例如,在房子里提供图书馆和酒窖。
一楼面积76.61平方米,一楼面积173.50平方米。第二个 - 86.62平方米墙壁由自然湿度的圆形原木D260制成,但其他材料也是可能的。墙体材料的体积为197.75平方米。
| 木屋 | |
| 房间数量 | 4,图书馆,酒窖,车库 |
| 生活区 | 93.21平方米 |
| 总面积 | 327.73平方米 |
| 基地面积 | 76.61平方米 |
| 一楼面积 | 173.50平方米 |
| 二楼面积 | 86.62平方米 |
| 墙体材料的体积 | 197.75平方米 |
| 一套墙壁材料,其他选项也是可能的。 | 圆形日志D260天然保湿 |

如果不使用各种成分的Tikkurila,德国Roben多巴哥彩色瓷砖,以及熟料砖和Roben瓷砖,那么宏伟宽敞的木屋将无法实现。
一楼平面图
二楼计划
木制小屋从日志,白俄罗斯,明斯克,项目“木屋”
75