
现代
木屋采用高科技风格的
胶合 木材 。家居美学由
建筑师定义的几何形状和房屋的下划线颜色区域创建。房子的布局既简洁又宽敞。房子里的房间足以容纳一个大家庭,或在您的乡间别墅接待朋友。
我们推荐的墙体材料是
技术干燥或胶合层压木材,几乎没有收缩,并且不会在几何复杂的木结构中造成问题。
现代技术,也被称为"高",几乎渗透到我们生活的所有领域,并留下不可磨灭的印记。对许多人来说,进步是一件令人愉快的事。当然,这种不断增长的趋势在木屋建筑这样看似传统的方向上得到了反映。
我们公司遵循房地产市场的技术和需求,因此提供了一个独特的高科技风格的木屋项目。
这座房子以花丝几何形状为特色。一眼就足以了解它所建造的建筑风格以及住在这所房子里的人。我们注意到这个房子的色区划分,使其视觉感知是整体的。它还将房屋与周围空间和附近的任何建筑融为一体。以Hi-Tech的风格买房,让遥远的未来更加紧密。
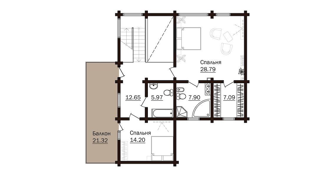
房子总面积为217平方米,其中122平方米为起居区。 7间宽敞明亮的客房可让您在大家庭的便利下入住,如果房屋是全年开放的,或者如果房子是乡村别墅,可以邀请许多朋友放松身心。
建议使用技术干燥的胶合木墙,这样可以避免房屋收缩并立即移入,因为最后的钉子会被锤击。
| 木屋 | |
| 房间数量 | 7 |
| 总面积 | 217.00平方米 |
| 生活区 | 122.00平方米。 |
| 一楼面积 | 117.00平方米。 |
| 二楼面积 | 101.80平方米 |
| 屋顶面积 | 226.70米平方米。 |
| 墙体材料的体积 | 100.87立方米 |
| 墙壁材料,其他选择是可能的。 | 异形木材200x150技术干燥 |
| 一套木制元素的价格* | 68 700 |
*套件的成本包括家中盒子的墙壁材料,准备装配。成本取决于所选择的墙壁材料。我们可以根据房屋的选定项目和您指定的材料计算全部商业报价 - 墙壁,屋顶,门窗,地板等。
价格是白俄罗斯卢布。
这里计算的"交钥匙"建设的可能价格
。
在木屋的颜色设计
颜色使用
外墙工程Tikkurila涂料。另外在设计推荐
瓦屋顶无烟煤色或天然石板库帕。
从
层压单板木材实现的高科技房屋平面图
:
14