
美丽而现代的房子,非常适合度假和永久居住。
这个项目中的大型全景窗户将在视觉上扩大空间并为房间增添光线。
二楼客房的额外照明由阁楼窗户解决。
这个项目在大型日志中看起来最好 - 26厘米或更多。宽阔的山墙陶瓷屋顶使这栋房屋的风格更接近传统的阿尔卑斯山小木屋,同时充当木结构的永久压力。
木材和陶瓷的组合允许在木结构的收缩期间实现结构的稳定性并且保持木屋的最大隔热性能。
| 木屋 | |
| 房间数量 | |
| 总面积 | 220平方米 |
| 一楼面积 | 134.02平方米 |
| 二楼面积 | 80.77平方米 |
| 墙体材料的体积 | 120.39立方米 |
| 一套墙壁材料,其他选择也是可能的。 | 圆形日志D240天然保湿 |
该项目可以采用不同的墙体材料选项 - 异形木材(天然水分/技术干燥,异形胶合木材)。
房屋采用
Röben天然红色
瓷砖装饰,房屋墙壁涂有
Tikkuril木材特殊涂料的浅色调,二楼的灯光与
Velux窗户相辅相成
。
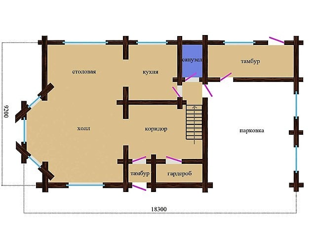
一楼平面图
二楼计划
从圆形原木项目“Adelweiss”的木房子
73