x
≡ Catalogar
Sobre nosotros Galería Contáctenos

टुकड़े टुकड़े वाले लिबास लकड़ी से घर. लकड़ी का बंगला "प्रोग्रामर" 250 m2

video
टुकड़े टुकड़े वाले लिबास लकड़ी से घर. लकड़ी का बंगला "प्रोग्रामर" 250 m2  एक छत के साथ घर "प्रोग्रामर" में शामिल हैं: अलग सेनेटरी सुविधाओं के साथ 3 बेडरूम, एक विशाल घुटा हुआ छत और एक रसोई-लिविंग रूम। ऐसा घर उन लोगों के लिए उपयुक्त है जो मेहमानों को प्राप्त करना पसंद करते हैं या घर पर व्यावसायिक बैठकें करते हैं।
.....................................................................................................................................................................................................
.
मूलभूत जानकारी:

मंजिलों की संख्या:2बेडरूम की संख्या3
रहने के जगह61,52 m2सभी मंजिलों का फर्श क्षेत्र:134,99 m2
छत और बालकनी क्षेत्र:70,12 m2छत क्षेत्र:- m2
निर्मित क्षेत्र:182 m2कीमत:अनुरोध पर
दीवार सामग्री:चिपके टुकड़े टुकड़े में लकड़ी (200х185 mm)*
छत सामग्री:सिरेमिक छत टाइल्स *
फाउंडेशन:अखंड स्लैब के साथ ढेर-ग्रिलेज *
खिड़की:लकड़ी *
* सामग्री ग्राहक की इच्छा के आधार पर भिन्न हो सकती है


सदन योजना:
.
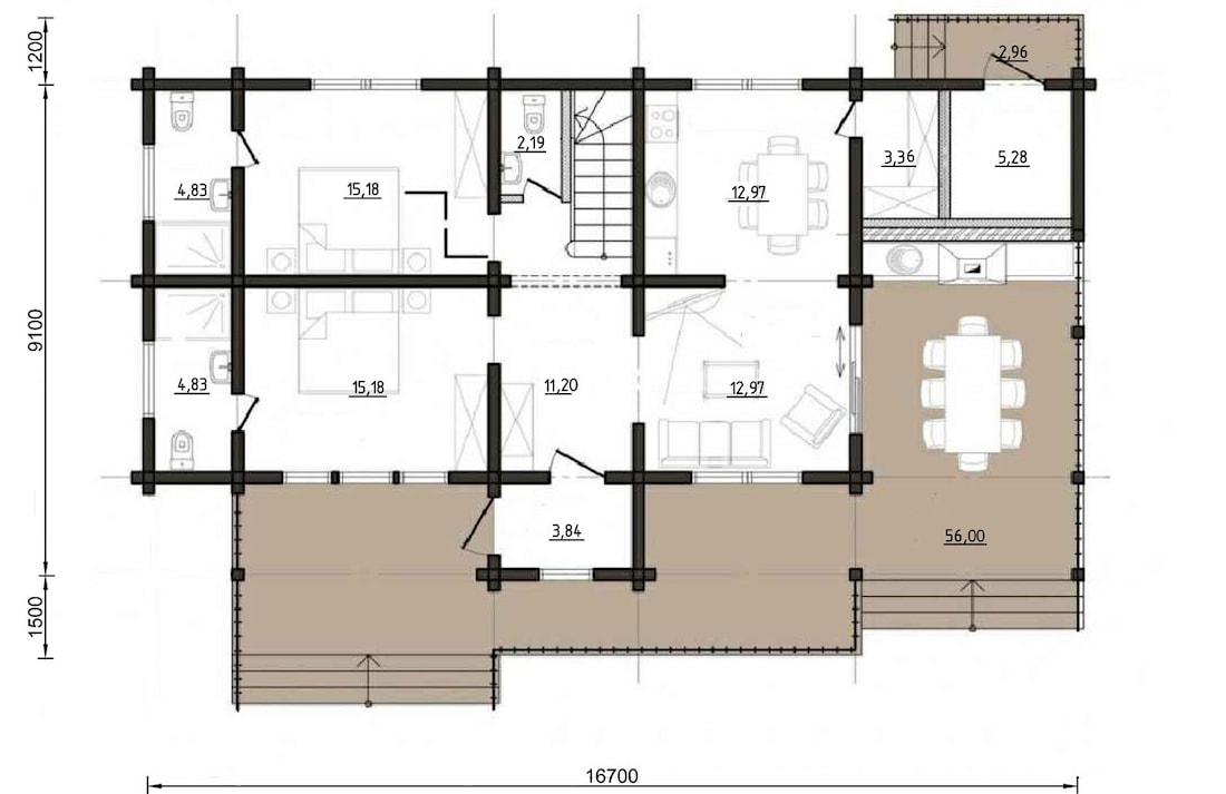
भूतल पर हैं: एक बरोठा, एक प्रवेश द्वार, एक शौचालय, एक रसोई-लिविंग रूम, एक तकनीकी कमरा, व्यक्तिगत संयुक्त बाथरूम के साथ दो बेडरूम, एक बड़ा बरामदा और एक छत:
.

.
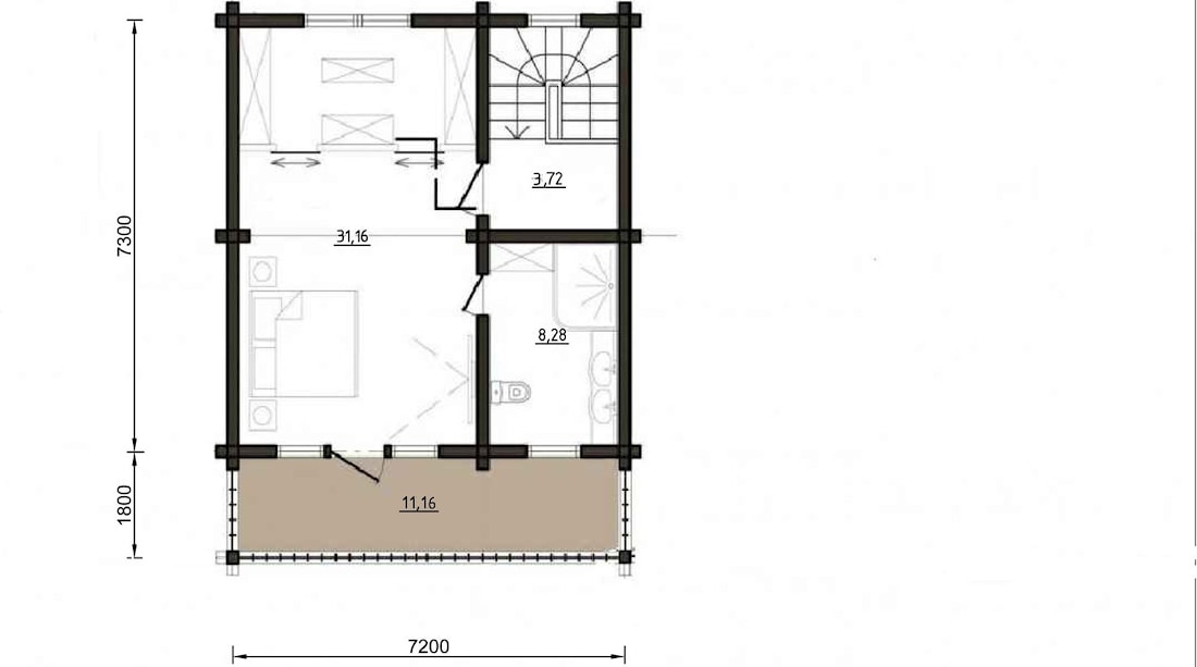
दूसरी मंजिल पर: अपनी खुद की संयुक्त सेनेटरी यूनिट के साथ मास्टर का बेडरूम:
.

.
परियोजना का संक्षिप्त विवरण:
.

"आईटी विशेषज्ञ का घर" एक लकड़ी का घर है जो टुकड़े टुकड़े में लिबास से बना है, जिसे आईटी उद्योग मिखाइल में एक सफल प्रतिभागी के आदेश से बनाया गया है, जो तुरंत जानता था कि वह अपने घर से क्या उम्मीद करता है। पहली बैठक के परिणामस्वरूप, निम्नलिखित कार्य निर्धारित किए गए थे:
  • सबसे पहले, घर सुंदर होना चाहिए। एक चाल होनी चाहिए, घर अलग होना चाहिए, दूसरों से बेहतर होना चाहिए, आपको इसमें रहना चाहिए, "सभी धन को इसमें विलय करना चाहिए" - जो पूरी तरह से ग्राहक के जीवन सिद्धांतों के अनुरूप है।
  • दूसरा स्वास्थ्य है, इसलिए घर को लकड़ी से डिजाइन करने का निर्णय लिया गया। लकड़ी के घर और पर्यावरण के अनुकूल सजावट दोनों को आदर्श वाक्य "लाइव, नींद, स्वस्थ" के तहत बनाया गया था।
  • तीसरा स्थान कार्य द्वारा लिया गया था: "ताकि घर कार्यालय से दो कदम दूर हो।" हमारे आईटी विशेषज्ञों की मुख्य इच्छाओं में से एक घर के लिए कार्यालय की निकटता है, ऐसे बहुत कम लोग हैं जो अपने कार्यालय के कंप्यूटर पर रोजाना 1-2 घंटे एक सड़क पर बिताना चाहते हैं। एक पुराने घर के साथ एक भूखंड खरीदने, ध्वस्त करने और इस भवन पर एक नया घर बनाने के द्वारा इस मुद्दे को हल किया गया था।
काम के परिणामस्वरूप एक सुंदर घर हरे रंग में रंगा हुआ था। यह लेआउट से इंटीरियर के हर विवरण तक आराम और सुविधा को जोड़ती है। परियोजना को हमारी कंपनी ने टर्नकी आधार पर लागू किया था।
...
अपीयरेंस:
...
घर आधुनिक वास्तुशिल्प शैली के तत्वों और सजावट के साथ दिलचस्प विषम वास्तुकला को जोड़ती है: बड़ी खिड़कियां जो नेत्रहीन और विषम रंगों को हल्का करती हैं।
सभी बाहरी दीवारें जर्मन उत्पादन, लकड़ी की खिड़कियों के हरे रंग के पेंट से ढंके हुए हैं - एक ही रंग की अधिक संतृप्त छाया में, जो मुखौटा के रंगीन पैलेट को और भी महान और दिलचस्प बनाती है। छत में हल्के भूरे रंग का टोन होता है और यह facades के साथ सही तालमेल में है:
.
Дом Айтишника .
बड़े छतों और बालकनियों से घर में विशेष ठंडक मिलती है। छत बोर्ड कवर, विशेष तेल के साथ इलाज:

.

.
बड़े 3 डी घर के दरवाजे:
.
Дом Айтишника
.
होम फोटो प्रदर्शनी:
.
भूखंड। खिड़की से एक महान दृश्य मिखाइल के लिए एक बहुत ही महत्वपूर्ण क्षण है। वह कमरों की संख्या को कम करने के लिए तैयार था ताकि खिड़कियां घर के बगल में एक उत्कृष्ट दृष्टिकोण और वर्ग का दृश्य दे सकें।
यह माना जाता है कि इंटीरियर एक ऐसी श्रेणी है जिसे पूरी तरह से बदला जा सकता है और फिर से बनाया जा सकता है, लेकिन अपनी खिड़की से दृश्य को हटाना शायद ही आर्किटेक्ट और ग्राहक दोनों की शक्ति के भीतर हो।
हम नहीं जानते कि क्या कंप्यूटर वैज्ञानिकों का इस उन्माद के लिए एक गहरा झुकाव है, या अगर यह सौंदर्य के लिए एक सामान्य मानव जुनून है, लेकिन संयुक्त राज्य अमेरिका में सफल आईटी-श्नाइक्स प्रकृति के दृष्टिकोण के साथ अपने घरों का निर्माण करना पसंद करते हैं:

.

.
.
घर के अंदरूनी हिस्से आधुनिक, शानदार और एक ही समय में प्रकाश, हवा और प्रकाश से भरे हुए हैं। लकड़ी की दीवारों को एक सुरक्षात्मक परिसर से ढंका गया है जो लकड़ी की सुंदर प्राकृतिक बनावट का खुलासा करती है:

.

.
छत पाइन तख्तों के साथ पंक्तिबद्ध हैं और हल्के क्रीम पेंट के साथ चित्रित किए गए हैं। आंतरिक वास्तुकला पर सजावटी पोर्टल्स द्वारा जोर दिया गया है:
.
एक बड़ा रसोईघर एक ऐसा स्थान है जहाँ आप उचित भोजन का आयोजन कर सकते हैं। आईटी के लोग बहुत उत्साही लोग हैं, और "कुछ खाने के लिए" शहर में अपना कीमती समय शहर में बर्बाद करना पसंद नहीं करते हैं।
उनमें से अधिकांश भोजन के बारे में जितना संभव हो उतना कम सोचना पसंद करते हैं, जबकि वे "शारीरिक वास्तविकता से अनुपस्थित हैं।" दूसरी ओर, आप भोजन की तलाश में जितना कम समय बिताते हैं, उतनी ही तेजी से परियोजना आगे बढ़ती है।
हमारे आधुनिक "आईटी विशेषज्ञों के घर" में ऐसे शगल के लिए सभी शर्तें हैं। इसमें एक ओवन, माइक्रोवेव, स्टोव, रेफ्रिजरेटर और डिशवॉशर के साथ एक रसोईघर है, जहां चाहने वाले अपने हाथों से कुछ पका सकते हैं - उत्सुक गीक के लिए एक आदर्श विकल्प जो अब बाहर जाने का कोई कारण नहीं है:

.

.

.
दूरस्थ रूप से काम करते समय, काम के क्षणों की एक अनौपचारिक चर्चा - इसके लिए यह महत्वपूर्ण है कि घर में विशेष कमरे और स्थान हैं। फायरप्लेस, दो रसोई, छतों और घर के सामने खुले क्षेत्रों के साथ बड़ा कमरा। यह सब निजी और सामूहिक रूप से परियोजना पर चर्चा करने और एक भरी सभा भवन में नहीं, बल्कि एक चिमनी में एक सुंदर रहने वाले कमरे में एक फायरप्लेस के साथ करने के लिए, ऑनलाइन और ऑफलाइन रैलियों को रखने में योगदान देता है:

.

.
एक महत्वपूर्ण सवाल: खेल और घर मनोरंजन। कभी-कभी आपको काम से विचलित होने की आवश्यकता होती है, जो उससे बहस कर सकता है? आईटी क्षेत्र में काम करना विशेष रूप से सिर-भारी है, इसलिए इस क्षेत्र में एक छोटा लेकिन रोमांचक ब्रेक होना अच्छा है। ऐसे क्षणों में, आप उठना चाहते हैं, अपने पैरों को फैलाएं, कंप्यूटर से थोड़ा ब्रेक लें। और खिड़की के बाहर एक धूम्रपान ब्रेक, कॉफी ब्रेक या परिदृश्य के चिंतन के विकल्प क्या हैं?
बड़े बिलियर्ड्स जैसे सरल खेल, न केवल एक ब्रेक लेने का अवसर प्रदान करते हैं, जबकि परियोजना को संकलित किया जा रहा है, बल्कि आपको रचनात्मक रूप से अपनी प्रतिस्पर्धा और दिन के दौरान जमा होने वाली नकारात्मकता को बाहर निकालने की अनुमति देता है, जो करीबी कार्यालय सहभागिता की प्रक्रिया में निहित है।
अलग-अलग, हम ध्यान दें कि मिखाइल को शारीरिक प्रशिक्षण के लिए जिम पसंद नहीं है, लेकिन फायरप्लेस रूम में बिलियर्ड्स को किसी भी तरह से खेलने का अवसर मिलता है:

.
ग्राहक अपने घर में बड़े-बड़े विशाल कमरे और निजी स्थान देखना चाहते थे - दो आंशिक रूप से अनन्य इच्छाएँ, लेकिन आधुनिक वास्तुकारों के लिए कुछ भी असंभव नहीं है।
एक ओर, मिखाइल के लिए, यह एक कठिन विचार को रिटायर करने और निजी तौर पर विचार करने या एक पुनरावृत्ति स्थिति में समस्या से आराम करने के लिए, बल्कि एक मॉनीटर के सामने कार्यस्थल पर लटकाए जाने की बजाय, जो उस समय की आवश्यकता नहीं है, के कारण होता है।
दूसरी ओर, वह "अपने सिर पर छत के दबाव को महसूस नहीं करना पसंद करता है।" उत्तरार्द्ध ठेठ कार्यालयों की समस्या है, आमतौर पर शहर के केंद्र में स्थित है। मिखाइल स्वतंत्र महसूस करना चाहता था, वह इंटीरियर में अव्यवस्था को पसंद नहीं करता है, और खासकर अगर कोई अपने निजी स्थान का उल्लंघन करने के लिए मजबूर हो जाता है, तो उसके सिर के पीछे की तरफ साँस लेते हैं।
एक निजी बाथरूम के साथ भूतल पर बड़ा कमरा:

.

.

.
भूतल पर दूसरा बड़ा कमरा, एक अलग बाथरूम के साथ भी:

.

.

.
घर में हीटिंग और प्रकाश प्रक्रियाओं का एक स्पष्ट स्वचालन है। कंप्यूटर वैज्ञानिक अपने घर को लघु "उड़ान नियंत्रण केंद्र" में बदलना पसंद करते हैं। आईटी के लोग अपने जीवन में सब कुछ नियंत्रित करना पसंद करते हैं, और कई बड़े और आधुनिक मॉनिटर और पूरे घर में स्थित एक आधुनिक नियंत्रण प्रणाली को इसमें मदद करनी चाहिए:

.

.

.
ग्राउंड फ्लोर बाथरूम, भव्य:
Дом Айтишника .
Дом Айтишника
.

.

.


नक्काशीदार रेलिंग के साथ एक स्टाइलिश सीढ़ी एक महत्वपूर्ण तत्व बन गई। यह आरामदायक और सुरक्षित डिज़ाइन इंटीरियर में ग्राफिक स्पर्श जोड़ता है। सीढ़ियों के लिए धन्यवाद, घर ने अपने स्वयं के जीवन पर कब्जा कर लिया, व्यक्तियों और बड़े परिवारों के लिए एक आदर्श घर में बदल दिया, मालिक और उसके मेहमानों को जीवन से खुश कर दिया:

.

.

.
ग्राहक की एक और मजबूत इच्छा: घर में स्वस्थ नींद! यह कार्य दूसरी मंजिल पर एक बड़ा बेडरूम बनाना था जिसमें अच्छी साउंडप्रूफिंग और ब्लैकआउट हो ताकि आप रातों की नींद हराम कर सकें।

.

.

.

.
ऐसा घर दुनिया में कहीं भी बनाया जा सकता है, यूरोप में, विशेष रूप से जर्मनी में, उत्पाद की गुणवत्ता के यूरोपीय प्रमाण पत्र के लिए धन्यवाद, जो हमारी कंपनी का मालिक है।



बिल्डिंग प्रकार
दो मंजिला झोपड़ी
बेडरूम की संख्या
3
दीवार सामग्री
चिपके टुकड़े टुकड़े में लकड़ी
विशेषताएं
छत के साथ घर, बालकनी वाला घर


We speak english, russian and german:

+375298-06-05-67 WhatsApp, Viber, Telegram

Mira más:

Puedes ver una reseña en video de la casa de madera "Casa Blanca" de madera laminada encolada Archiline Houses:

Puede ver una revisión en video de la casa de madera "Mirage":

Si deseas comprar टुकड़े टुकड़े वाले लिबास लकड़ी से घर. लकड़ी का बंगला "प्रोग्रामर" 250 m2 , puedes:



Más de la sección लकड़ी के मकान. 7 सबसे अच्छे घर

  • बिल्डिंग प्रकार: तीन मंजिला झोपड़ी
  • बेडरूम की संख्या: 2
  • दीवार सामग्री: गोल लॉग
  • विशेषताएं: छत के साथ घर, बालकनी वाला घर
सिस्तेमा 10 साल पहले बने पहले घरों में से एक है। अभिलेखीय सदनों द्वारा असामान्य डिजाइन, निर्माण और निर्माण। यह विचार है कि लकड़ी के घर एक ही प्रकार के हैं, वैचारिक रूप से पुराने हैं और लकड़ी के घर बनाना असंभव है जो जल्द ही ऊब नहीं होगा - यह टुकड़ों ...
  • बिल्डिंग प्रकार: एक मंजिला झोपड़ी
  • बेडरूम की संख्या: 2
  • दीवार सामग्री: चिपके टुकड़े टुकड़े में लकड़ी
  • विशेषताएं: छत के साथ घर
छत के साथ टुकड़े टुकड़े में लिबास से बना एक लकड़ी का घर "यूरोडोम" एक छोटे से परिवार के स्थायी निवास के लिए एक छोटा सा घर है। घर में आपके लिए आवश्यक सब कुछ है: दो बेडरूम, एक बाथरूम और एक विशाल रसोई-लिविंग रूम। ...
  • बिल्डिंग प्रकार: दो मंजिला झोपड़ी
  • बेडरूम की संख्या: 5
  • दीवार सामग्री: चिपके टुकड़े टुकड़े में लकड़ी
  • विशेषताएं: छत के साथ घर, बालकनी वाला घर
टुकड़े टुकड़े में लिबास "सफेद" से बने लकड़ी के घर में शामिल हैं: 5 बेडरूम, रसोई-लिविंग रूम 58 एम 2 और दो बाथरूम। ऐसा घर एक बड़े दोस्ताना परिवार के स्थायी निवास के लिए एकदम सही है। ...
  • बिल्डिंग प्रकार: स्नान भवन
  • दीवार सामग्री: चिपके टुकड़े टुकड़े में लकड़ी
एक पूल और एक पोसिडॉन छत के साथ टुकड़े टुकड़े में लिबेर स्नान में शामिल हैं: सभी कमरों के साथ एक 5 एम 2 स्टीम रूम और एक विश्राम कक्ष जहां एक बड़ी, हंसमुख कंपनी शानदार महसूस करेगी। ...
  • बिल्डिंग प्रकार: दो मंजिला झोपड़ी
  • बेडरूम की संख्या: 2
  • दीवार सामग्री: चिपके टुकड़े टुकड़े में लकड़ी
  • विशेषताएं: छत के साथ घर, बालकनी वाला घर
एक स्टोव और एक छत "प्रकाशस्तंभ" के साथ एक बार से एक लकड़ी का घर शामिल है: 17 एम 2 के दो बेडरूम, 50 एम 2 के एक रसोई-लिविंग रूम और 4.8 एम 2 के दो बाथरूम। ऐसा घर 3-4 लोगों के परिवार के स्थायी निवास के लिए एकदम सही है। ...
  • बिल्डिंग प्रकार: एक मंजिला झोपड़ी
  • बेडरूम की संख्या: 2
  • दीवार सामग्री: चिपके टुकड़े टुकड़े में लकड़ी
  • विशेषताएं: छत के साथ घर
स्कैंडिनेवियाई लकड़ी का घर टुकड़े टुकड़े में लिबास से बना "सुबह" - एक विशाल रहने का कमरा, अलग रसोईघर, दो बेडरूम और एक बाथरूम के साथ एक बड़ा घर। यह घर उन लोगों के लिए आदर्श है जिन्हें छोटे संलग्न स्थान पसंद नहीं हैं। ...
  • बिल्डिंग प्रकार: एक मंजिला झोपड़ी
  • बेडरूम की संख्या: 2
  • दीवार सामग्री: चिपके टुकड़े टुकड़े में लकड़ी
  • विशेषताएं: छत के साथ घर
टुकड़े टुकड़े में लिबास "मिराज" से बना प्राकृतिक लकड़ी का घर - 2 बेडरूम, एक बैठक और छत के उपयोग के साथ एक अलग रसोईघर के साथ एक कॉम्पैक्ट घर। यह एक छोटे से स्थायी घर की तलाश करने वालों के लिए आदर्श समाधान है। ...
    पहचानने योग्य वास्तुशिल्प लाइनों के साथ क्लासिक फिनिश लकड़ी का घर "कोसकेनकोरवा"। तीन बेडरूम, लिविंग रूम, किचन, ड्रेसिंग रूम, छत, दूसरी मंजिल पर - बेडरूम, बाथरूम, बालकनी और अटारी। प्रोजेक्ट को 2022 में आर्किलाइन द्वारा लॉग के लिए अनुकूलित किया गया ...
    © 2025 ArchiLine Wooden Houses
    114-49, Necrasov str., Minsk, Republic of Belarus, 220049
                                                  

    El sitio funciona con Nestorclub.com