x
≡ Catalogar
Sobre nosotros Galería Contáctenos

टुकड़े टुकड़े में लकड़ी से बना घर. निजी घर "प्रकाशस्तंभ" 144 m2

टुकड़े टुकड़े में लकड़ी से बना घर. निजी घर "प्रकाशस्तंभ" 144 m2  एक स्टोव और एक छत "प्रकाशस्तंभ" के साथ एक बार से एक लकड़ी का घर शामिल है: 17 एम 2 के दो बेडरूम, 50 एम 2 के एक रसोई-लिविंग रूम और 4.8 एम 2 के दो बाथरूम। ऐसा घर 3-4 लोगों के परिवार के स्थायी निवास के लिए एकदम सही है।
.....................................................................................................................................................................................................
.
मूलभूत जानकारी:

मंजिलों की संख्या:2बेडरूम की संख्या2
रहने के जगह28.1 m2सभी मंजिलों का फर्श क्षेत्र:136.49 m2
छत और बालकनी क्षेत्र:27.6 m2छत क्षेत्र:- m2
निर्मित क्षेत्र:122 m2कीमत:अनुरोध पर
दीवार सामग्री:चिपकी हुई लकड़ी (200х185 mm)*
छत सामग्री:सिरेमिक छत टाइल्स *
फाउंडेशन:अखंड स्लैब के साथ ढेर-ग्रिल*
खिड़की:लकड़ी का*
* सामग्री ग्राहक की इच्छा के आधार पर भिन्न हो सकती है


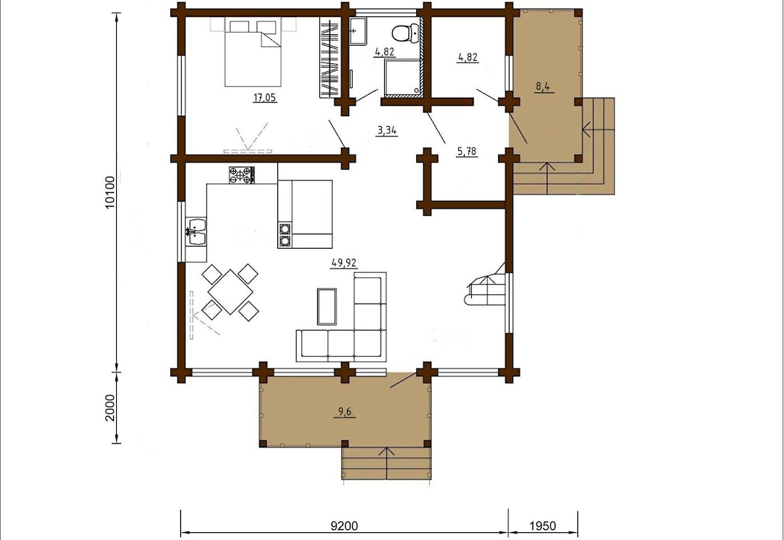
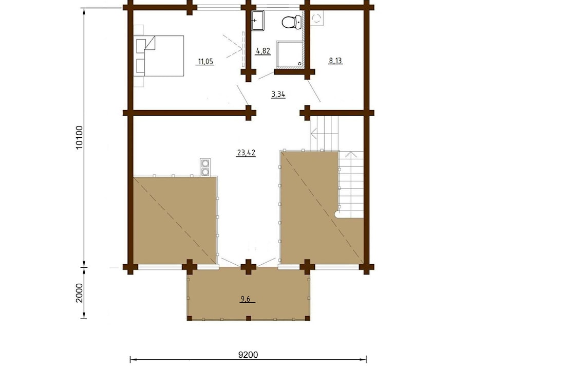
सदन योजना:
.
भूतल पर हैं: एक बरोठा, एक भट्ठी का कमरा, एक संयुक्त सैनिटरी इकाई, एक बेडरूम, एक छत के साथ रसोई-कमरे में रहने वाला कमरा।
.

.
दूसरी मंजिल पर: एक बेडरूम, एक संयुक्त सैनिटरी यूनिट, एक अलमारी, एक बालकनी के साथ एक हॉल।
.
.
अपीयरेंस:
.
Дом из клеенного бруса с террасой и печью
.

.

.

.
होम फोटो प्रदर्शनी:
.
साइट से शुरू करते हैं। बाईं ओर का घर एक पुराना स्नानागार है। जब यह सवाल पैदा हुआ कि कहां बनाया जाए - मिन्स्क में, या कहीं और, उन्होंने इसके बारे में याद किया।

.
जैसा कि पहले उल्लेख किया गया है, घर झील के तत्काल आसपास के क्षेत्र में पहाड़ के पैर में स्थित है, इसलिए मुझे परिदृश्य के साथ कड़ी मेहनत करने की ज़रूरत नहीं थी, प्रकृति ने खुद खिड़की से एक उत्कृष्ट दृश्य के लिए सभी परिस्थितियों का निर्माण किया। स्वच्छ हवा, जंगल का शोर, पानी जिसमें टेनस, ब्रीम, पर्च और पाईक हैं, अच्छे जीवन के लिए और क्या आवश्यक है?

.

.

.
घर के लिए एक अच्छा इसके अलावा पत्थर से बनी गज़ेबो और रिटेनिंग वॉल है। घर के पीछे मयंक माउंट शुरू होता है, और भूमि को साइट पर फिसलने से रोकने के लिए, एक रिटेनिंग दीवार बनाई गई थी। एक तहखाने और एक गज़ेबो को ढलान में जोड़ा गया था। पत्थर का एक बहुत कुछ है, स्थानीय कारीगरों को पता है कि इसके साथ कैसे काम करना है। बोल्डर को विभाजित किया जाता है और फॉर्मवर्क में रखा जाता है ताकि चिनाई के सामने का भाग सपाट हो। पत्थर मूल दिखता है, और एक गर्म दिन पर यह एक ठोस शीतलता देता है:
Беседка из камня
.
Подпорная стенка из камня
.
Но вернемся к дому. Минуя тамбур, из которого можно пройти в техническое помещение, попадаем в салонную зону, соответствующей концепции open space. Гостиная, объединенная со столовой и кухней дает чувство легкости и пространства.

.

.

.
इस आधुनिक घर के अंदर आप जो देखने की उम्मीद नहीं करते हैं वह काले क्लिंकर ईंटों से बना एक बड़ा रूसी स्टोव है। मालिक इसे नियमित रूप से ठंड के मौसम में गर्म करते हैं और उस पर खाना बनाते हैं।
Печь в деревянном доме
.

.
Хозяин говорит, что любимое место в доме – это лежанка. Лежа на печи, можно прямо через большие окна любоваться озером. Печь с лежанкой, кроме своих основных функций является дополнительным спальным местом и ярким предметом интерьера:

.

.
भूतल पर एक बेडरूम और बाथरूम के लिए एक जगह भी है: अतिथि ब्लॉक को सार्वजनिक स्थान से अलग किया जाता है।

.

.

.
हम दूसरी मंजिल की ओर बढ़े। कांच के हैंडल के साथ लकड़ी के चरणों में, हम उस जगह में प्रवेश करते हैं जिसने पहली मंजिल के लिए "दूसरी रोशनी" को बरकरार रखा है। यहां हम झील के दृश्य वाली बड़ी खिड़कियों के करीब आ सकते हैं और बालकनी में जा सकते हैं।

.
Второй свет в доме
.
यहाँ से हम मास्टर बेडरूम, बाथरूम और अलमारी तक भी पहुँच सकते हैं। कुछ और कमरों की व्यवस्था करना संभव था, लेकिन फिर रहने वाले कमरे को दूसरी रोशनी के बिना छोड़ दिया जाएगा, और इसके लिए कोई ज़रूरत नहीं है, घर में पर्याप्त रहने की जगह है।

.

.

.
ताप और जल तापन प्रणाली:
.
हालांकि घर में एक स्टोव है, इसमें एक सजावटी कार्य है। पानी को गर्म करने और घर को गर्म करने के लिए, गर्मी पंप, अंडरफ्लोर हीटिंग सिस्टम और एक गर्म पानी के आधार पर आधारित प्रणाली का उपयोग किया जाता है।
आखिर इसका समाधान क्यों? साइट पर कोई गैस नहीं है और नहीं होगी। फायरवुड, छर्रों मुश्किल हैं, अधिक बार आपको काम के लिए घर छोड़ने की आवश्यकता होती है, और ऐसे ईंधन पर चलने वाले बॉयलर पर ध्यान देने की आवश्यकता होती है। हमने लंबे समय तक सोचा, लेकिन हमारी कंपनी के डिजाइन चरण में उन्होंने भू-तापीय तापन के बारे में बात की और यह एक निर्णायक क्षण था।
जियोथर्मल हीटिंग कार्यों का एक पूरा परिसर है। हीट पंप के लिए घर के पास 100 मीटर के तीन कुओं को ड्रिल किया गया था और एंटीफ् lowerीज़र वाले पाइपों को उनमें उतारा गया था। कुओं से पाइप एक केंद्रीय कुएं में जाते हैं। इससे बॉयलर के कमरे में दो पाइप होते हैं - "आपूर्ति" और "वापसी"। घर में तापमान में कमी या वृद्धि मानव हस्तक्षेप के बिना, स्वचालित रूप से विनियमित होती है।
यदि बिजली चली जाती है, तो गर्मी पंप बंद हो जाता है। यह बहुत कम ही होता है, और जैसा कि नेटवर्क में वोल्टेज दिखाई देता है - उपकरण स्वयं शुरू होता है।
पंप की थर्मल पावर - 17 किलोवाट। पास में एक 700 लीटर टैंक है, जिसमें गर्म पानी की आपूर्ति और हीटिंग सिस्टम गर्म होते हैं (क्रमशः 300 और 400 लीटर)
Система на основе теплового насоса .
हीट पंप की क्षमताओं ने बेडरूम में फैंकोइल को स्थापित करना संभव बना दिया। यह कंप्रेसर के संचालन के बिना, मिट्टी कलेक्टर के माध्यम से शीतलक के संचलन के कारण एक निष्क्रिय शीतलन प्रणाली है। Fancoil एक एयर कंडीशनर की तरह काम करता है, लेकिन लगभग मुफ्त:
Фанкойл
.
पूरे घर को गर्म फर्श से गर्म किया जाता है। और बेडरूम में एक असामान्य गर्म झालर प्रणाली है। यह एक फ्लैट-बेसबोर्ड की तरह दिखने वाला एक मिनी-कंवर्टर है, जो एक फ्लैट बेसबोर्ड की तरह दिखता है, जिसके अंदर पीतल की पसलियों के साथ तांबे के पाइप होते हैं, जिसके माध्यम से गर्म पानी फैलता है। यह ऊष्मा स्रोत ऊष्मा पम्पों के साथ अच्छी तरह काम करता है:

.

.
हीट पंप सिस्टम सस्ता नहीं है, लेकिन इसकी तुलना गैस या पेलेट बॉयलर से नहीं की जाती है। सवाल सरल है: "क्या यह किसी साइट के लिए दसियों हज़ार डॉलर से अधिक का भुगतान करने लायक है जिसका मूल्य केवल इस तथ्य में निहित है कि गैस की आपूर्ति की जाती है?"

.


बिल्डिंग प्रकार
दो मंजिला झोपड़ी
बेडरूम की संख्या
2
दीवार सामग्री
चिपके टुकड़े टुकड़े में लकड़ी
विशेषताएं
छत के साथ घर, बालकनी वाला घर


We speak english, russian and german:

+375298-06-05-67 WhatsApp, Viber, Telegram

Mira más:

Puedes ver una reseña en video de la casa de madera "Casa Blanca" de madera laminada encolada Archiline Houses:

Puede ver una revisión en video de la casa de madera "Mirage":

If you want to buy टुकड़े टुकड़े में लकड़ी से बना घर. निजी घर "प्रकाशस्तंभ" 144 m2 , you can:



More from section लकड़ी के मकान. 7 सबसे अच्छे घर

  • बिल्डिंग प्रकार: तीन मंजिला झोपड़ी
  • बेडरूम की संख्या: 2
  • दीवार सामग्री: गोल लॉग
  • विशेषताएं: छत के साथ घर, बालकनी वाला घर
सिस्तेमा 10 साल पहले बने पहले घरों में से एक है। अभिलेखीय सदनों द्वारा असामान्य डिजाइन, निर्माण और निर्माण। यह विचार है कि लकड़ी के घर एक ही प्रकार के हैं, वैचारिक रूप से पुराने हैं और लकड़ी के घर बनाना असंभव है जो जल्द ही ऊब नहीं होगा - यह टुकड़ों ...
  • बिल्डिंग प्रकार: एक मंजिला झोपड़ी
  • बेडरूम की संख्या: 2
  • दीवार सामग्री: चिपके टुकड़े टुकड़े में लकड़ी
  • विशेषताएं: छत के साथ घर
छत के साथ टुकड़े टुकड़े में लिबास से बना एक लकड़ी का घर "यूरोडोम" एक छोटे से परिवार के स्थायी निवास के लिए एक छोटा सा घर है। घर में आपके लिए आवश्यक सब कुछ है: दो बेडरूम, एक बाथरूम और एक विशाल रसोई-लिविंग रूम। ...
  • बिल्डिंग प्रकार: दो मंजिला झोपड़ी
  • बेडरूम की संख्या: 5
  • दीवार सामग्री: चिपके टुकड़े टुकड़े में लकड़ी
  • विशेषताएं: छत के साथ घर, बालकनी वाला घर
टुकड़े टुकड़े में लिबास "सफेद" से बने लकड़ी के घर में शामिल हैं: 5 बेडरूम, रसोई-लिविंग रूम 58 एम 2 और दो बाथरूम। ऐसा घर एक बड़े दोस्ताना परिवार के स्थायी निवास के लिए एकदम सही है। ...
  • बिल्डिंग प्रकार: स्नान भवन
  • दीवार सामग्री: चिपके टुकड़े टुकड़े में लकड़ी
एक पूल और एक पोसिडॉन छत के साथ टुकड़े टुकड़े में लिबेर स्नान में शामिल हैं: सभी कमरों के साथ एक 5 एम 2 स्टीम रूम और एक विश्राम कक्ष जहां एक बड़ी, हंसमुख कंपनी शानदार महसूस करेगी। ...
  • बिल्डिंग प्रकार: एक मंजिला झोपड़ी
  • बेडरूम की संख्या: 2
  • दीवार सामग्री: चिपके टुकड़े टुकड़े में लकड़ी
  • विशेषताएं: छत के साथ घर
स्कैंडिनेवियाई लकड़ी का घर टुकड़े टुकड़े में लिबास से बना "सुबह" - एक विशाल रहने का कमरा, अलग रसोईघर, दो बेडरूम और एक बाथरूम के साथ एक बड़ा घर। यह घर उन लोगों के लिए आदर्श है जिन्हें छोटे संलग्न स्थान पसंद नहीं हैं। ...
  • बिल्डिंग प्रकार: एक मंजिला झोपड़ी
  • बेडरूम की संख्या: 2
  • दीवार सामग्री: चिपके टुकड़े टुकड़े में लकड़ी
  • विशेषताएं: छत के साथ घर
टुकड़े टुकड़े में लिबास "मिराज" से बना प्राकृतिक लकड़ी का घर - 2 बेडरूम, एक बैठक और छत के उपयोग के साथ एक अलग रसोईघर के साथ एक कॉम्पैक्ट घर। यह एक छोटे से स्थायी घर की तलाश करने वालों के लिए आदर्श समाधान है। ...
  • बिल्डिंग प्रकार: दो मंजिला झोपड़ी
  • बेडरूम की संख्या: 3
  • दीवार सामग्री: चिपके टुकड़े टुकड़े में लकड़ी
  • विशेषताएं: छत के साथ घर, बालकनी वाला घर
एक छत के साथ घर "प्रोग्रामर" में शामिल हैं: अलग सेनेटरी सुविधाओं के साथ 3 बेडरूम, एक विशाल घुटा हुआ छत और एक रसोई-लिविंग रूम। ऐसा घर उन लोगों के लिए उपयुक्त है जो मेहमानों को प्राप्त करना पसंद करते हैं या घर पर व्यावसायिक बैठकें करते हैं। ...
    पहचानने योग्य वास्तुशिल्प लाइनों के साथ क्लासिक फिनिश लकड़ी का घर "कोसकेनकोरवा"। तीन बेडरूम, लिविंग रूम, किचन, ड्रेसिंग रूम, छत, दूसरी मंजिल पर - बेडरूम, बाथरूम, बालकनी और अटारी। प्रोजेक्ट को 2022 में आर्किलाइन द्वारा लॉग के लिए अनुकूलित किया गया ...
    © 2025 ArchiLine Wooden Houses
    114-49, Necrasov str., Minsk, Republic of Belarus, 220049
                                                  

    The site is powered by Nestorclub.com