x
≡ Catalogar
Sobre nosotros Galería Contáctenos

एक फ्लैट छत के साथ आधुनिक लकड़ी का घर, प्रोजेक्ट "नादेज़्दा" 182 वर्ग मीटर

एक फ्लैट छत के साथ आधुनिक लकड़ी का घर, प्रोजेक्ट "नादेज़्दा" 182 वर्ग मीटर  लकड़ी का घर "नादेज़्दा" एक आधुनिक फ्लैट-छत वाला घर है जो किसी भी क्षेत्र में फिट हो सकता है: चाहे वह शहर का निजी क्षेत्र हो या एक खुले जलाशय के पास की साइट। यह झोपड़ी आसानी से 4-6 लोगों के परिवार को समायोजित कर सकती है।
.....................................................................................................................................................................................................

मूलभूत जानकारी:

मंजिलों की संख्या:2बेडरूम की संख्या3
रहने के जगह44,32 m2सभी मंजिलों का फर्श क्षेत्र:167,56 m2
छत और बालकनी क्षेत्र:51,38 m2छत क्षेत्र:220 m2
निर्मित क्षेत्र:200 m2कीमत:अनुरोध पर
दीवार सामग्री:Profiled चिपके बीम (180х185 mm)*
छत सामग्री:पीवीसी झिल्ली *
फाउंडेशन:अखंड स्लैब के साथ ढेर-ग्रिलेज *
खिड़की:लकड़ी *
* सामग्री ग्राहक की इच्छा के आधार पर भिन्न हो सकती है


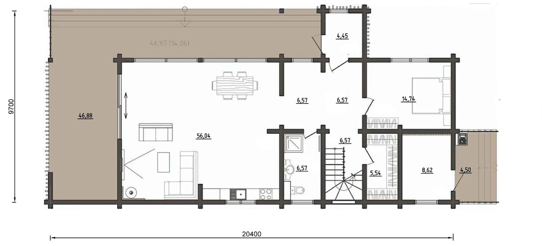
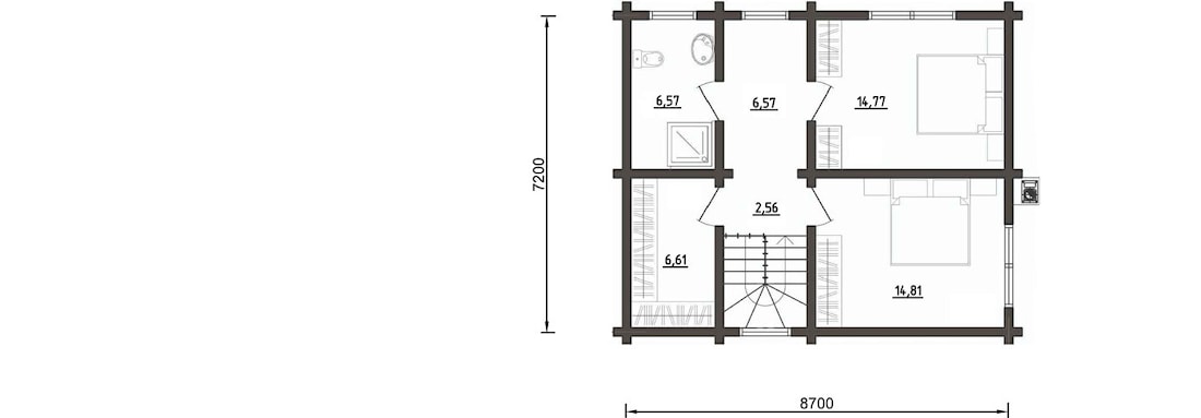
सदन योजना:
.
भूतल पर हैं: एक बरोठा, एक प्रवेश द्वार, एक भट्ठी का कमरा, एक सेनेटरी यूनिट, एक अलमारी, एक बेडरूम, एक विशाल रसोईघर में छत के साथ रहने का कमरा:
.

.
दूसरे में 2 बेडरूम, एक बाथरूम और एक भंडारण कक्ष हैं:
.
.
संक्षिप्त वर्णन:
.
एक फ्लैट छत "नादेज़्दा" के साथ एक लकड़ी का घर एक अद्वितीय, आधुनिक उपस्थिति, सामग्रियों की अर्थव्यवस्था और कम पैसे के लिए एक सुंदर घर है। एक विशिष्ट डिजाइन प्रणाली और अद्वितीय प्रौद्योगिकियों के कारण, एक व्यक्तिगत उपस्थिति बनाई गई है। कंपनी "अर्चिलाइन" को एक सपाट छत के साथ घरों के निर्माण में व्यापक अनुभव है, एक मालिकाना दृष्टिकोण जो आपको पैसा बचाएगा और निर्माण प्रक्रिया को गति देगा। समतल छत वाला घर बनाना तेज, किफायती और सुंदर है।
.
सूरत:
.

.
डिजाइन के चरण पर सदन:।
.

.

.
होम फोटो प्रदर्शनी:
.
एक आरामदायक रसोई-लिविंग रूम एक ऐसी जगह है जहाँ आप परिवार की शामें, शोर-शराबे पार्टी या बस आराम कर सकते हैं, जबकि खिड़की से दृश्य का आनंद ले सकते हैं:

.

.
पहली और दूसरी मंजिल की स्वच्छता सुविधाओं में शामिल हैं: एक शॉवर केबिन, एक वॉशबेसिन और एक शौचालय का कटोरा। परिष्करण के साथ कोई समस्या नहीं है, एक लकड़ी के घर में आप आसानी से दीवारों और फर्श पर टाइल लगा सकते हैं:

.

.
पहली मंजिल का बेडरूम बहुत आरामदायक है। लकड़ी की बनावट को बनाए रखते हुए लकड़ी की दीवारों को लगभग किसी भी रंग दिया जा सकता है।

.
क्या गरम है?
.
हीटिंग का मुद्दा अक्सर डिजाइन और निर्माण में मुख्य मुद्दों में से एक बन जाता है, खासकर अगर चयनित स्थान पर कोई गैस की आपूर्ति नहीं की जाती है। गैस का उपयोग किए बिना सर्दियों और गर्मियों में आरामदायक तापमान? यदि आप हीट पंप का उपयोग करते हैं तो यह संभव है। यह प्रणाली, एक गर्म फर्श और गर्म पानी के बेसबोर्ड के साथ मिलकर, हीटिंग समस्या को हल करती है।
एक "हीट पंप" हीटिंग सिस्टम की लागत लंबी दूरी पर गैस बिछाने की लागत से कम है। एक घर के उत्पादन और निर्माण के साथ समानांतर में एक अद्वितीय हीटिंग सिस्टम की स्थापना की जा सकती है।


बिल्डिंग प्रकार
दो मंजिला झोपड़ी
बेडरूम की संख्या
3
दीवार सामग्री
चिपके टुकड़े टुकड़े में लकड़ी
विशेषताएं
छत के साथ घर, फ्लैट की छत वाला घर


We speak english, russian and german:

+375298-06-05-67 WhatsApp, Viber, Telegram

Mira más:

Puedes ver una reseña en video de la casa de madera "Casa Blanca" de madera laminada encolada Archiline Houses:

Puede ver una revisión en video de la casa de madera "Mirage":

If you want to buy एक फ्लैट छत के साथ आधुनिक लकड़ी का घर, प्रोजेक्ट "नादेज़्दा" 182 वर्ग मीटर , you can:



More from section लकड़ी के आवास शीर्ष 45 परियोजनाएं

  • बिल्डिंग प्रकार: एक मंजिला झोपड़ी
  • बेडरूम की संख्या: 3
  • दीवार सामग्री: चिपके टुकड़े टुकड़े में लकड़ी
  • विशेषताएं: छत के साथ घर
बार से लकड़ी का घर बनाने की इच्छा के लिए गुल्लक में आर्किलाइन कंपनी का एक और शानदार घर-सपना! एक बड़े परिवार के लिए आरामदायक, आरामदायक, बढ़िया घर विकल्प। अंतरिक्ष के प्रेमी परिसर के लेआउट और प्लेसमेंट के प्रति उदासीन नहीं रहेंगे। कमरों की सुविधाजनक ...
    एक सपाट छत लकड़ी का घर एक अद्वितीय, आधुनिक रूप, भौतिक बचत और कम पैसे के लिए एक सुंदर घर है। विशिष्ट डिजाइन प्रणाली और अद्वितीय प्रौद्योगिकियों के कारण, एक व्यक्तिगत उपस्थिति बनाई जाती है। कंपनी "अर्चिलाइन" को एक सपाट छत के साथ घरों के निर्माण में ...
    • बिल्डिंग प्रकार: एक मंजिला झोपड़ी
    • बेडरूम की संख्या: 2
    • दीवार सामग्री: इमारती लकड़ी
    • विशेषताएं: छत के साथ घर, कूल्हे की छत के साथ घर
    एक मंजिला ठोस लकड़ी का घर, कुल क्षेत्रफल 179 m2, रहने का क्षेत्र 80.80 m2 । स्ट्रिप फाउंडेशन, सिरेमिक टाइल्स, तीन बेडरूम, भूतल पर दो, अटारी में एक; छत, बाथरूम, हॉल, रसोई-भोजन कक्ष, दो छतों के उपयोग के साथ विशाल बैठक का कमरा। परियोजना प्राकृतिक ...
    • बिल्डिंग प्रकार: तीन मंजिला झोपड़ी
    • बेडरूम की संख्या: 4
    • दीवार सामग्री: चिपके टुकड़े टुकड़े में लकड़ी
    • विशेषताएं: छत के साथ घर
    एक छत "सन" के साथ घर - एक बड़े लकड़ी के घर में तीन स्टूडियो, उन्नीस से पच्चीस वर्ग मीटर तक के तीन बेडरूम हैं। गोल्फ क्लब "कलिनोवे पोला" के क्षेत्र में पोलैंड में निर्मित टुकड़े टुकड़े में लिबास के बने एक छत के साथ एक घर का टर्नकी निर्माण, इसमें ...
    • बिल्डिंग प्रकार: तीन मंजिला झोपड़ी
    • बेडरूम की संख्या: 3
    • विशेषताएं: छत के साथ घर, बालकनी वाला घर
    "खुशी" एक पारंपरिक शैली में निर्मित टुकड़े टुकड़े लिबास से बना एक विशाल घर है, लेकिन एक ही समय में एक आरामदायक रहने के लिए सभी आधुनिक प्रौद्योगिकियों को जोड़ती है। Profiled सरेस से जोड़ा हुआ बीम को संकोचन की आवश्यकता नहीं होती है, जो एक अमूल्य लाभ ...
    • बिल्डिंग प्रकार: एक मंजिला झोपड़ी
    • बेडरूम की संख्या: 2
    • दीवार सामग्री: चिपके टुकड़े टुकड़े में लकड़ी
    • विशेषताएं: छत के साथ घर
    अभी भी यकीन नहीं है कि लकड़ी के घर के अपने सपने को सच करने के लिए पहला कदम क्या है? ArchiLine सदनों आप एक स्पष्ट जवाब दे सकते हैं - एक परियोजना के साथ शुरू करो! विचार एक-एक करके दिमाग में आते हैं, विचार एक रूप से दूसरे रूप में, लेआउट से लेआउट तक ...
    • बिल्डिंग प्रकार: तीन मंजिला झोपड़ी
    • बेडरूम की संख्या: 5
    • दीवार सामग्री: चिपके टुकड़े टुकड़े में लकड़ी
    • विशेषताएं: छत के साथ घर
    "Nibelung"- एक दो मंजिला लकड़ी का घर जो सरेस से जोड़ा हुआ 200x150, छह कमरे और दो छतों से बना है। घर का डिज़ाइन समाधान मुखौटा और एन्थ्रेसाइट छत के गहरे रंगों को खिड़की और दरवाजे के फ्रेम के सफेद रंग के साथ जोड़ता है, छत के ओवरहैंग्स को दाखिल करता है। ...
    • बिल्डिंग प्रकार: तीन मंजिला झोपड़ी
    • बेडरूम की संख्या: 2
    • दीवार सामग्री: चिपके टुकड़े टुकड़े में लकड़ी
    • विशेषताएं: बालकनी वाला घर
    बैडेन-वुर्टेमबर्ग में 2019 में जर्मनी में हमारी कंपनी द्वारा निर्मित लकड़ी का घर "Baden-Württemberg"। आर्किटेक्ट का मुख्य कार्य मालिकों की मौजूदा साइट पर पहाड़ के किनारे पर लकड़ी के घर को अंकित करना है, जो इस क्षेत्र में, जर्मनी के दक्षिण-पश्चिम ...
    • बिल्डिंग प्रकार: दो मंजिला झोपड़ी
    • बेडरूम की संख्या: 4
    • दीवार सामग्री: चिपके टुकड़े टुकड़े में लकड़ी
    • विशेषताएं: छत के साथ घर, बालकनी वाला घर
    एक प्रसिद्ध डिज़ाइन स्टूडियो की सिफारिशों के आधार पर टुकड़े टुकड़े में लिबास से बने दो मंजिला लकड़ी के घर के लिए सफेद रंग योजना को चुना गया था। दीवारों के प्रकाश टन पूरी तरह से संयुक्त हैं और एक ही समय में एन्थ्रेसाइट सिरेमिक टाइल्स और खिड़की और ...
    • बिल्डिंग प्रकार: तीन मंजिला झोपड़ी
    • बेडरूम की संख्या: 3
    • दीवार सामग्री: चिपके टुकड़े टुकड़े में लकड़ी
    • विशेषताएं: छत के साथ घर
    "काला रंग"" - एक अद्वितीय हीटिंग सिस्टम के साथ एक सुंदर लकड़ी का घर। पंपों का उपयोग करके घर के हीटिंग और शीतलन के कारण सर्दियों और गर्मियों में आरामदायक तापमान। अंडरफ्लोर हीटिंग और गर्म पानी के झालर सिस्टम गैस के उपयोग के बिना सही गर्मी वितरण की ...
    • बिल्डिंग प्रकार: दो मंजिला झोपड़ी
    • बेडरूम की संख्या: 4
    • दीवार सामग्री: चिपके टुकड़े टुकड़े में लकड़ी
    • विशेषताएं: छत के साथ घर
    विशाल दो मंजिला घर "वुडन हाउस" टुकड़े टुकड़े में लिबास से बना है। अंदर पाँच कमरे, एक रसोई-भोजन कक्ष, दो बाथरूम और एक छत है। पहली मंजिल पर दूसरी रोशनी और मनोरम खिड़कियां नेत्रहीन रूप से अंतरिक्ष का विस्तार करती हैं, जबकि दूसरी मंजिल पर बड़ी मंजिल से ...
    • बिल्डिंग प्रकार: एक मंजिला झोपड़ी
    • बेडरूम की संख्या: 3
    • दीवार सामग्री: इमारती लकड़ी
    • विशेषताएं: छत के साथ घर
    "सुतोकी" - एक लकड़ी की एक मंजिला शैलेट-शैली वाला घर, जो कि सूखी रूपरेखा वाली लकड़ी से बना है, कुल क्षेत्रफल 141 m2 एक बहुत ही दिलचस्प परियोजना - लैकोनिक, सरल और विशाल। एक छोटा लकड़ी का शैलेट-शैली वाला घर, हालांकि आकार में छोटे, तीन बेडरूम हैं, एक ...
    © 2026
    ArchiLine Wooden Houses
    114-49, Necrasov str., Minsk, Republic of Belarus, 220049

    The site is powered by Nestorclub.com