x
≡ Catalogar
Sobre nosotros Galería Contáctenos

Casa de madera gris de chapa de madera laminada con dos dormitorios, proyecto "Salud"

video
Casa de madera gris de chapa de madera laminada con dos dormitorios, proyecto "Salud"  "Salud": el área total de la casa es de 129,5 m2, de los cuales 109,7 m2 son superficie habitable. Para construir esta casa se requerirán 78 m3 de material de pared, lo cual no es tanto considerando el ancho, largo y alto de la casa. Los arquitectos lograron encontrar una solución de color para la casa: los tonos suaves la hacen verdaderamente acogedora, atractiva, interesante y deseable.
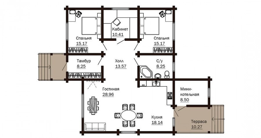
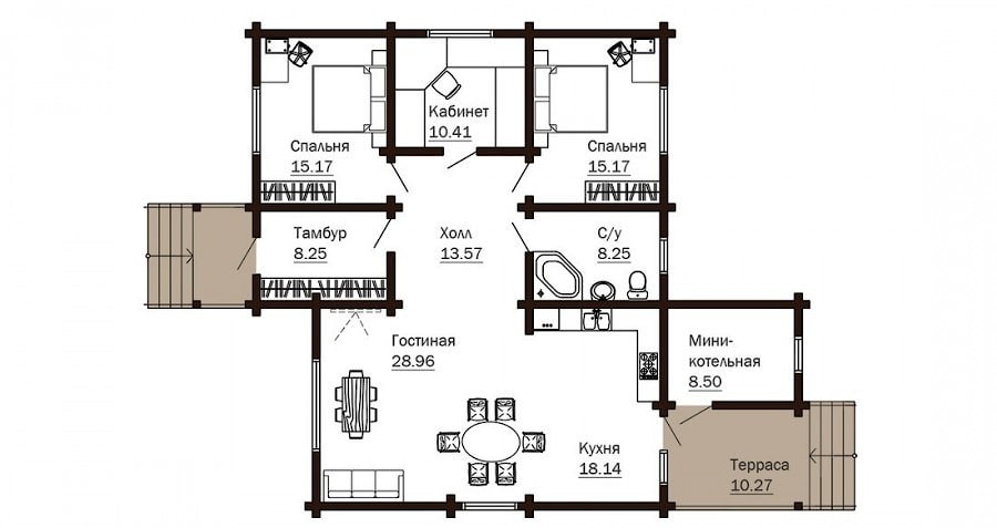
Plano de la casa: Casa de madera gris de chapa de madera laminada con dos dormitorios, proyecto "Salud"

área total, m2129
Espacio vital, m2109,7
Numero de salas de estar, m24
Volumen del material de la pared - vigas encoladas perfiladas, sección 200x200 mm


Casa de madera gris de chapa de madera laminada con dos dormitorios, proyecto "Salud" La solución arquitectónica y artística de la casa de madera "Salud" pasa por la creación de una imagen moderna y atractiva. La forma compleja hace que la casa sea interesante para la percepción y cómoda para vivir. La superficie total es de 129,5 m2, de los cuales 109,7 m2 son residenciales. Casa de madera gris de chapa de madera laminada con dos dormitorios, proyecto "Salud" Ventanas de diferentes formas y tamaños se convirtieron en una característica del proyecto: hicieron las fachadas visualmente más ligeras y proporcionaron la máxima iluminación de los interiores. Aunque las ventanas pequeñas en las viviendas no son una fuente suficiente de luz natural, aumentan visualmente la altura del techo y neutralizan el efecto de una pared en blanco: Casa de madera gris de chapa de madera laminada con dos dormitorios, proyecto "Salud" Bañera: Casa de madera gris de chapa de madera laminada con dos dormitorios, proyecto "Salud" Casa de madera gris de chapa de madera laminada con dos dormitorios, proyecto "Salud" El proyecto tiene todo para una cómoda estadía familiar: una amplia sala de estar combinada con una cocina, dos acogedores dormitorios amplios, una oficina, una mini sala de calderas, un recibidor, un baño y una terraza. Hay dos accesos a la casa: desde la terraza, entrando a la cocina o sala de mini-calderas, y por el vestíbulo organizado hacia el hall. Directamente desde el recibidor se accede a todos los locales de la casa. El espacio interno de la casa es libre de movimiento y fácil de orientar: Casa de madera gris de chapa de madera laminada con dos dormitorios, proyecto "Salud" Este proyecto muestra de la mejor manera cómo organizar de manera competente, concisa y armoniosa el espacio interno de una casa a partir de madera de chapa laminada. Los tonos claros y cálidos de la decoración y los techos altos le dan al interior suavidad y amplitud, creando una sensación de espacio ilimitado. Los grandes ventanales dejan entrar mucha luz, lo que permite lograr una unidad visual del espacio habitable con la naturaleza, haciéndolo ligero, fresco y agradable de percibir: Casa de madera gris de chapa de madera laminada con dos dormitorios, proyecto "Salud" En una sala de estar cómodamente amueblada, puede reunir a toda la familia para unas vacaciones relajantes o invitar a invitados y divertirse en una gran compañía, ¡porque hay suficiente espacio para todos! El esquema de color del interior es propicio para un pasatiempo agradable, también existe la oportunidad de disfrutar del calor de la chimenea y admirar la llama del fuego: Casa de madera gris de chapa de madera laminada con dos dormitorios, proyecto "Salud" Casa de madera gris de chapa de madera laminada con dos dormitorios, proyecto "Salud" Casa de madera gris de chapa de madera laminada con dos dormitorios, proyecto "Salud" Casa de madera gris de chapa de madera laminada con dos dormitorios, proyecto "Salud" Casa de madera gris de chapa de madera laminada con dos dormitorios, proyecto "Salud" Casa de madera gris de chapa de madera laminada con dos dormitorios, proyecto "Salud" Casa de madera gris de chapa de madera laminada con dos dormitorios, proyecto "Salud" Casa de madera gris de chapa de madera laminada con dos dormitorios, proyecto "Salud" Casa de madera gris de chapa de madera laminada con dos dormitorios, proyecto "Salud" Casa de madera gris de chapa de madera laminada con dos dormitorios, proyecto "Salud" Casa de madera gris de chapa de madera laminada con dos dormitorios, proyecto "Salud" Casa de madera gris de chapa de madera laminada con dos dormitorios, proyecto "Salud" Casa de madera gris de chapa de madera laminada con dos dormitorios, proyecto "Salud" Casa de madera gris de chapa de madera laminada con dos dormitorios, proyecto "Salud" Baño cerca de la casa: sauna sauna sauna sauna sauna sauna sauna sauna sauna sauna sauna



13


Tipo de edificio:
casa de una planta
Numero de habitaciones
2
Material de la pared
Madera laminada encolada
Caracteristicas
casa con terraza, casa con estudio


We speak english, russian and german:

+375298-06-05-67 WhatsApp, Viber, Telegram

Mira más:

Puedes ver una reseña en video de la casa de madera "Casa Blanca" de madera laminada encolada Archiline Houses:

Puede ver una revisión en video de la casa de madera "Mirage":

If you want to buy casa de madera gris de chapa de madera laminada con dos dormitorios, proyecto "Salud" , you can:



More from section CASAS DE MADERA TOP 45 proyectos

  • Tipo de edificio: :casa de dos pisos
  • Material de la pared: Tronco redondeado
  • Caracteristicas: casa con techo de paja
Casa de campo hecha de troncos redondeados de secado técnico, base de tiras, techo de cables, proyecto "Holanda" Proyecto de una casa de madera para una casa de verano o una casa de campo. Para reducir el tiempo de construcción de una casa de ...
  • Tipo de edificio: :casa de una planta
  • Numero de habitaciones: 1
  • Material de la pared: Tronco redondeado
  • Caracteristicas: casa con terraza
"Architect" es un hermoso proyecto de una casa de troncos de madera: la combinación perfecta de tamaño, precio y calidad. Pequeños gastos de materiales, dinero y tiempo, y a la salida, una casa de troncos, que los vecinos envidiarán. El diseño ...
  • Tipo de edificio: :casa de una planta
  • Numero de habitaciones: 2
  • Material de la pared: Madera laminada encolada
  • Caracteristicas: casa con terraza, casa con estudio
"Stealth-2": los propietarios de pequeñas áreas suburbanas a menudo no saben qué tipo de casa quieren construir. Me gustaría que fuera espacioso, pero al mismo tiempo no ocupara mucho espacio, equipado con el equipamiento necesario, pero al mismo ...
  • Tipo de edificio: :casa de una planta
  • Numero de habitaciones: 3
  • Material de la pared: Madera perfilada
  • Caracteristicas: casa con terraza
"Sutoki": una casa de madera de estilo chalet de una sola planta hecha de madera perfilada seca, superficie total de 141 m² Un proyecto muy interesante: lacónico, simple y espacioso. Una pequeña casa estilo chalet de madera, aunque de tamaño ...
  • Tipo de edificio: :casa de dos pisos
  • Numero de habitaciones: 5
  • Material de la pared: Madera laminada encolada
  • Caracteristicas: casa con terraza, casa con estudio, casa con balcon
"Nibelung" es una casa de madera de dos plantas realizada con vigas encoladas 200x150, seis habitaciones y dos terrazas. La solución de diseño de la casa combina los colores oscuros de la fachada y el techo de antracita con el color blanco de los ...
  • Tipo de edificio: :casa de una planta
  • Numero de habitaciones: 2
  • Material de la pared: Madera laminada encolada
  • Caracteristicas: casa de techo plano
Gracias a la habilidad de especialistas altamente calificados que trabajan en la empresa, el resultado del trabajo siempre se mantiene sin cambios: todos los objetos construidos se distinguen por su funcionalidad y estética, y la claridad del ...
  • Tipo de edificio: :casa de dos pisos
  • Numero de habitaciones: 3
  • Material de la pared: Madera perfilada
  • Caracteristicas: casa con terraza, casa con balcon
"Felicidad" es una casa espaciosa hecha de madera laminada enchapada construida en un estilo tradicional, pero al mismo tiempo combina todas las tecnologías modernas para una estancia confortable. Las vigas encoladas perfiladas no requieren ...
  • Tipo de edificio: :casa de una planta
  • Material de la pared: Tronco redondeado
  • Caracteristicas: casa con techo a cuatro aguas
Fotos de una hermosa casa de madera hecha de troncos redondeados de diámetro 26. La casa está ubicada en Polonia, cerca de Varsovia. Ventana de Lucarne o "ojo de ...
  • Tipo de edificio: :casa de dos pisos
  • Numero de habitaciones: 2
  • Material de la pared: Madera laminada encolada
  • Caracteristicas: casa con terraza, casa con balcon
Casa llave en mano de madera laminada encolada, con cimentación e instalación, grado A, proyecto "Happy Til", área 84 m², espesor de pared 18cm Logre su objetivo, ahorre dinero, ¡construya una casa de madera con madera laminada por el precio de un ...
  • Tipo de edificio: :casa de dos pisos
  • Numero de habitaciones: 5
  • Material de la pared: Tronco redondeado
  • Caracteristicas: casa con terraza
Casa de madera de un tronco, país, de dos pisos, proyecto "Alma" - área total 227 m2 Casa de un tronco redondeado con un diámetro de 26 cm con siete habitaciones, un trastero y una terraza. Hay un horno en la planta baja. La entrada principal con ...
  • Tipo de edificio: :casa de una planta
  • Material de la pared: Madera perfilada
  • Caracteristicas: casa con terraza, casa con sauna
Casa de madera realizada con vigas perfiladas de humedad natural El proyecto "Dream" es un proyecto original de una casa de madera realizada con vigas perfiladas, con una superficie total de 214 m2. El proyecto incluye un piso, siete habitaciones y ...
  • Tipo de edificio: :casa de una planta
  • Numero de habitaciones: 2
  • Material de la pared: Madera perfilada
  • Caracteristicas: casa con terraza, casa con techo a cuatro aguas
Casa de madera de una planta de madera maciza, con una superficie de 179 m², cimentación de listones, baldosas cerámicas La superficie total es de 179,65 m², mientras que la superficie habitable es de 80,80 m². La superficie de la planta baja es de ...
© 2026 ArchiLine Wooden Houses
114-49, Necrasov str., Minsk, Republic of Belarus, 220049

The site is powered by Nestorclub.com