x
≡ Catalogar
Sobre nosotros Galería Contáctenos

Grå trehus laget av laminert finertømmer med to soverom, prosjekt "Health"

Grå trehus laget av laminert finertømmer med to soverom, prosjekt "Health"  "Helse" - husets totale areal er 129,5 m², hvorav 109,7 m² boareal. Dette huset vil kreve 78m3 veggmateriale, som ikke er så mye med tanke på husets bredde, lengde og høyde. Arkitektene klarte å finne en fargeløsning for huset: myke toner gjør det virkelig koselig, attraktivt, interessant og ønskelig.
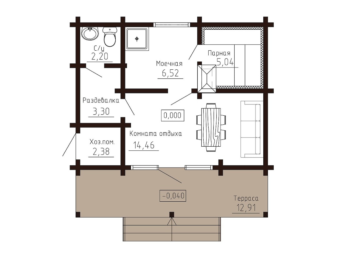
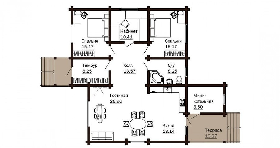
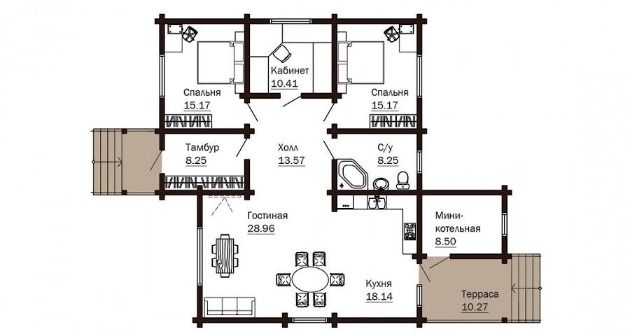
Husplan: Grå trehus laget av laminert finertømmer med to soverom, prosjekt "Health"

Totalt areal, m2129,5 м2
Boareal, m2109,7 м2
Antall stuer4


Grå trehus laget av laminert finertømmer med to soverom, prosjekt "Health" Den arkitektoniske og kunstneriske løsningen på trehuset "Health" forutsetter at det skapes et moderne og attraktivt image. Den komplekse formen gjør huset interessant for persepsjon og behagelig å bo. Det totale arealet er 129,5 m2, hvorav 109,7 m2 er bolig. Grå trehus laget av laminert finertømmer med to soverom, prosjekt "Health" Et trekk ved prosjektet var vinduer i forskjellige former og størrelser - de gjorde fasadene visuelt lettere og sørget for maksimal belysning av interiøret. Selv om små vinduer i boligkvarteret ikke er tilstrekkelig med naturlig lys, øker de takhøyden visuelt og nøytraliserer effekten av en blank vegg: Grå trehus laget av laminert finertømmer med to soverom, prosjekt "Health" Bad: Grå trehus laget av laminert finertømmer med to soverom, prosjekt "Health" Grå trehus laget av laminert finertømmer med to soverom, prosjekt "Health" Prosjektet har alt for et komfortabelt familieopphold: en romslig stue kombinert med kjøkken, to koselige store soverom, et kontor, et mini-fyrrom, en hall, et bad og en terrasse. Det er to innganger til huset: fra terrassen, inn i kjøkkenet eller mini-fyrrom, og gjennom den organiserte vestibulen inn i hallen. Direkte fra hallen kan du komme til alle husets lokaler. Husets indre rom er fritt for bevegelse og lett å orientere: Grå trehus laget av laminert finertømmer med to soverom, prosjekt "Health" Dette prosjektet viser på den beste måten hvordan du kompetent, konsis og harmonisk kan organisere det indre rommet til et hus laget av laminert finertømmer. Lyse, varme toner med dekor og høye tak gir interiøret mykhet og luftighet, og skaper en følelse av ubegrenset plass. Store vinduer slipper inn mye lys, noe som gjorde det mulig å oppnå en visuell enhet av boarealet med naturen, noe som gjør den lys, frisk og behagelig å oppfatte: Grå trehus laget av laminert finertømmer med to soverom, prosjekt "Health" I en komfortabelt innredet stue kan du samle hele familien for en avslappende ferie eller invitere gjester og ha det gøy i et stort selskap, fordi det er nok plass til alle! Fargeskjemaet i interiøret bidrar til et hyggelig tidsfordriv, det er også en mulighet til å nyte varmen fra peisen og beundre ildflammen: Grå trehus laget av laminert finertømmer med to soverom, prosjekt "Health" Grå trehus laget av laminert finertømmer med to soverom, prosjekt "Health" Grå trehus laget av laminert finertømmer med to soverom, prosjekt "Health" Grå trehus laget av laminert finertømmer med to soverom, prosjekt "Health" Grå trehus laget av laminert finertømmer med to soverom, prosjekt "Health" Grå trehus laget av laminert finertømmer med to soverom, prosjekt "Health" Grå trehus laget av laminert finertømmer med to soverom, prosjekt "Health" Grå trehus laget av laminert finertømmer med to soverom, prosjekt "Health" Grå trehus laget av laminert finertømmer med to soverom, prosjekt "Health" Grå trehus laget av laminert finertømmer med to soverom, prosjekt "Health" Grå trehus laget av laminert finertømmer med to soverom, prosjekt "Health" Grå trehus laget av laminert finertømmer med to soverom, prosjekt "Health" Grå trehus laget av laminert finertømmer med to soverom, prosjekt "Health" Grå trehus laget av laminert finertømmer med to soverom, prosjekt "Health" Bad i nærheten av huset: Grå trehus laget av laminert finertømmer med to soverom, prosjekt "Health" Grå trehus laget av laminert finertømmer med to soverom, prosjekt "Health" Grå trehus laget av laminert finertømmer med to soverom, prosjekt "Health" Grå trehus laget av laminert finertømmer med to soverom, prosjekt "Health" Grå trehus laget av laminert finertømmer med to soverom, prosjekt "Health" Grå trehus laget av laminert finertømmer med to soverom, prosjekt "Health" Grå trehus laget av laminert finertømmer med to soverom, prosjekt "Health" Grå trehus laget av laminert finertømmer med to soverom, prosjekt "Health" Grå trehus laget av laminert finertømmer med to soverom, prosjekt "Health" Grå trehus laget av laminert finertømmer med to soverom, prosjekt "Health" Grå trehus laget av laminert finertømmer med to soverom, prosjekt "Health"

13


Bygningstype
enetasjes hus
Antall soverom
2
Veggmateriale
limt laminert tømmer
Funksjoner:
badstue med terrasse, hus med arbeidsrom


We speak english, russian and german:

+375298-06-05-67 WhatsApp, Viber, Telegram

Mira más:

Puedes ver una reseña en video de la casa de madera "Casa Blanca" de madera laminada encolada Archiline Houses:

Puede ver una revisión en video de la casa de madera "Mirage":

Si deseas comprar grå trehus laget av laminert finertømmer med to soverom, prosjekt "Health" , puedes:



Más de la sección TREHUS TOPP 45 prosjekter

  • Funksjoner: :hus med terrasse, :flatt takhus
  • Bygningstype: to-etasjes hus
  • Antall soverom: 3
  • Veggmateriale: limt laminert tømmer
Trehus "Nadezhda" er et moderne hus med flatt tak som kan passe inn i ethvert område: det være seg den private sektoren av byen eller et område i nærheten av et åpent reservoar. Denne hytta har lett plass til en familie på 4-6 personer. ...
  • Funksjoner: :hus med terrasse
  • Bygningstype: enetasjes hus
  • Antall soverom: 3
  • Veggmateriale: limt laminert tømmer
"Red House" - huset har en stue / spisestue, et kjøkken, tre soverom, et bad, en vestibyle og en ovn. Den romslige overbygde terrassen gjør det mulig å tilbringe tid utendørs i alle vær. Innredningen på den koselige overbygde terrassen gir maksimal ...
  • Funksjoner: :hus med terrasse, :hus med badstue
  • Bygningstype: to-etasjes hus
  • Antall soverom: 3
  • Veggmateriale: limt laminert tømmer
Black Forest er et vakkert trehus med et unikt varmesystem. Komfortabel temperatur vinter og sommer på grunn av oppvarming og kjøling av huset med varmepumpe. Gulvvarme og et varmtvannsbasert system løser problemet med ideell varmefordeling uten ...
  • Funksjoner: :hus med terrasse, :hus med arbeidsrom
  • Bygningstype: to-etasjes hus
  • Antall soverom: 5
  • Veggmateriale: limt laminert tømmer
"Nibelung" er et to-etasjes trehus laget av limte bjelker 200x150, seks rom og to terrasser. Husets designløsning kombinerer de mørke fargene på fasaden og antrasittakingen med den hvite fargen på vindu og dørkarmer, arkivering av takoverheng. ...
  • Funksjoner: :hus med terrasse
  • Bygningstype: to-etasjes hus
  • Antall soverom: 5
  • Veggmateriale: runde tømmerstokk
Trehus laget av tømmerstokker, land, to-etasjes, prosjekt "Soul" - totalt areal 227 m² Hus laget av avrundede tømmerstokker med en diameter på 26 centimeter med syv rom, en bod og en terrasse. Det er en ovn i første etasje. Hovedinngangen med en ...
  • Funksjoner: :hus med terrasse
  • Bygningstype: to-etasjes hus
  • Veggmateriale: runde tømmerstokk
Trehus laget av avrundede tømmerstokker, et utmerket alternativ for et landsted. To etasjer, i første etasje er det en stue, et kjøkken, et soverom for barn, et bad, en terrasse; i andre etasje er det flere soverom og en hall. Antall rom 7 Boareal, ...
  • Funksjoner: :hus med terrasse, :hip tak hus
  • Bygningstype: enetasjes hus
  • Antall soverom: 2
  • Veggmateriale: profilert tømmer
En-etasjes trehus laget av massivt tømmer, med et areal på 179 m², stripefundament, keramiske fliser, Hviterussland Det totale arealet er 179,65 m², mens boarealet er 80,80 m². Første etasje er nesten 143 m², og taket er 142,91 m². Tre soverom, to i ...
  • Funksjoner: :hus med terrasse
  • Bygningstype: enetasjes hus
  • Antall soverom: 1
  • Veggmateriale: runde tømmerstokk
"Arkitekt" er et vakkert prosjekt av et tømmerhus: den perfekte kombinasjonen av størrelse, pris og kvalitet. Små kostnader for materialer, penger og tid, og ved utgangen - et tømmerhus, som naboene vil misunne. Sofistikert utforming, veggtykkelse ...
  • Funksjoner: :hus med terrasse, :hus med badstue
  • Bygningstype: enetasjes hus
  • Veggmateriale: profilert tømmer
Trehus fra profilert tømmer av naturlig fuktighet "Dream" -prosjektet er et originalt prosjekt av et trehus fra profilert tømmer, med et samlet areal på 214 kvadratmeter. Prosjektet inkluderer en etasje, syv rom og en badstue. En god løsning er å ...
  • Funksjoner: :hip tak hus, :hus med garasje
  • Bygningstype: enetasjes hus
  • Veggmateriale: runde tømmerstokk
Dette huset forutsetter komfortabel opphold for en familie på fem eller seks personer. Det spesielle ved prosjektet er at huset er variabelt, det kan lett tilpasses kundens ønsker med tanke på areal og funksjonalitet. Det viktigste er at det er ...
  • Funksjoner: :hus med garasje, :hus med arbeidsrom
  • Bygningstype: to-etasjes hus
  • Antall soverom: 3
  • Veggmateriale: profilert tømmer
Nydelig, moderne hus, med et mursteingjerde, som er ideelt for både rekreasjon og permanent opphold. Store panoramavinduer i dette prosjektet vil visuelt utvide plassen og gi lys til rommene. Ekstra belysning i lokalene i andre etasje er gitt av ...
  • Funksjoner: :hus med balkong
  • Bygningstype: to-etasjes hus
  • Antall soverom: 2
  • Veggmateriale: profilert tømmer
Trehus "Baden-Württemberg", bygget av vårt firma i Tyskland i 2019 i delstaten Baden-Württemberg. Hovedoppgaven til arkitekten er å skrive trehuset på det eksisterende stedet til eierne, på siden av fjellet, som florerer i dette området, sørvest i ...
© 2025 ArchiLine Wooden Houses
114-49, Necrasov str., Minsk, Republic of Belarus, 220049
                                              

El sitio funciona con Nestorclub.com