x
≡ Catalogar
Sobre nosotros Galería Contáctenos

Hvitt trehus laget av laminert finertømmer "White House" 207 m²

video
Hvitt trehus laget av laminert finertømmer "White House" 207 m²  Trehus laget av laminert finertømmer "White House" inkluderer: 5 soverom, kjøkken-stue 58 m2 og to bad. Et slikt hus er perfekt for permanent opphold for en stor vennlig familie.
.....................................................................................................................................................................................................

GRUNNLEGGENDE INFORMASJON:

Antall etasjer:2Antall soverom5
Stue76,21 m2Gulvflate i alle etasjer:191,13 m2
Terrasse og balkongområde:52,04 m2Takområde:- m2
Tettbygd strøk:171 m2Pris:om forespørsel
Veggmateriale:Profilerte limte bjelker (200x185 mm) *
Takmateriale:Keramiske takstein *
Fundament:Pælegrillage med monolitisk plate *
Vindu:Tre *
* Materialer kan variere avhengig av kundens ønsker


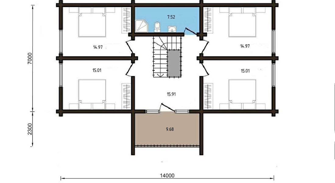
HUSPLAN:
.
I første etasje er det: en vestibyle, en ovn, en romslig kjøkken-stue med utgang til terrassen, et soverom med separat garderobe og en sanitærenhet:

.
I andre etasje: 4 soverom, kombinert bad:

.
KORT BESKRIVELSE AV PROSJEKTET:
.
Det hvite hus er elite, lett og luftig, med veldig godt innhold. Huset ble bygget av vårt beste konstruksjonsteam. En elbil ville se bra ut ved siden av dette huset. Huset ser ut til å ha sin egen intelligens.
.
Det hvite hus er et utmerket uttak for de som leter etter noe nytt innen arkitektur. Det overgår de mest moderne betong- og glasshusene og ser flott ut i enhver bygning.
.
Når du ser på dette huset, er det lett å bedømme eieren - en vakker og sjarmerende kvinne med sans for smak og stil. Hun føler seg fin og forstår detaljene, og det er grunnen til at huset ser flott ut, og fremhever styrkene hennes! Kommunisere med en slik person, være i et slikt hus, blir du selv sterkere! Vi er sikre på at minnene fra selskapet vårt, selv etter år, vil få henne til å føle seg bra.
.
STOR VIDEO ANMELDELSE AV HUSET:



STOR 3D HJEMTUR:
.
.
UTSEENDE:
.
En høy sokkel med murstein, fasader dekket med hvit maling, gjerder og en veranda laget av smiende elementer - alt dette gir huset et koselig utseende. Terrassen er dekket med keramiske fliser. Dreneringssystemet er av plast. Takmateriale - keramiske fliser av tysk produksjon Roben, farge - antrasitt:

.

.
De fleste vinduene er i gulvet, noe som gir mye lys og visuelt løfter fasaden. Vinduene i huset er av tre, laget med platebånd og bakker. Installert av vårt firma. Vinduskarmer til vinduene er laget av produsenten, vår partner. Vinduer fra dette selskapet presenteres i mange av husene våre:

.
Takket være inngangslobbyen med veranda, en terrasse og en bred balkong, ser bygningen veldig imponerende ut. Den varme hvite fargen på ytterveggskledningen fungerer bra med landskapets fargepalett:

.
Siden vi har berørt ordet "landskap", noen få ord om det ytre. Det blinde området og stiene rundt huset er brolagt med stein, og plenen er dekorert med alle slags busker og blomster:

.

.
Et lysthus eller et lite skur i bakgården er et flott tillegg til ethvert hjem:

.
Men tilbake til huset. Du kan komme inn på to måter: gjennom hovedinngangen eller terrassen:

.
Vær forsiktig, huset, i tillegg til alarmen, er bevoktet av denne søte skapningen:

.
Når vi kommer inn i huset gjennom hovedinngangen, befinner vi oss i vestibulen, hvor et kleshenger og et skap for oppbevaring av ting er beleilig plassert:

.

.

.
Døren motsatt er inngangen til fyrrommet. Huset varmes opp av en gasskjele. Fyrrommet er tilgjengelig både fra vestibulen og utenfor; det er en egen inngang fra gaten:

.
Vi drøyer ikke og går til hoveddelen av huset:

.
Veggene i stuen er malt med sammensetningen av Tikkurila "Panels-Yassya": halvmatt hvit lakk, tømmer for husets indre overflater, takene er dekorert med dekorativt gips, og stilige fliser er lagt på gulvet:

.

.

.
Alt dette skaper en atmosfære av varme og komfort i huset:

.

.
Stue:

.

.

.

.
Kjøkkenområde:

.

.

.

.
Også i første etasje var det et sted for et soverom med et areal på 17 m2:

.

.

.
Soverommet har eget omkledningsrom (ikke inkludert i gjennomgangen) og eget bad med badekar:

.

.

.

.
En integrert del av interiøret er en smidd trapp, langs tretrappene vi kan klatre opp til andre etasje:

.
.

.
Из общего пространства второго этажа попадаем на прекрасный балкон, а также в четыре комнаты и общий санитарный узел:

.
.
Original belysning:

.

.
Vi passerer inn i stuen:

.

.

.
Barnerom:

.

.

.

.
Andre barnehage:

.

.
Badet i andre etasje har to store vinduer. Slike vinduer er installert i et hus der takvinkelen ikke er mer enn 25 grader:

.

.

.

.
Det hvite hus vil bli et hovedprosjekt i en hvilken som helst gate og vil bli gjenstand for oppmerksomhet fra mange naboer. Det hvite hus er en utmerket investering, dette er eiendom A. Du vil ikke angre på en eneste krone investert i den, hver av dem vil returnere hundre ganger. "Det hvite hus" er et utmerket signal til høyere makter at du er på jorden
.....................................................................................................................................................................................................


.
ArchiLine bestreber seg på å få gode anmeldelser for sitt arbeid, og derfor har de ansatte en individuell tilnærming til hver kunde. Vi er alltid glade for å lytte til ønsker og ta hensyn til når vi implementerer hvert drømmehus. Som denne).
Hvis du vil bygge et vakkert, miljøvennlig trehus - kontakt ArchiLine!


Bygningstype
to-etasjes hus
Antall soverom
5
Veggmateriale
limt laminert tømmer
Funksjoner:
hus med terrasse, hus med balkong


We speak english, russian and german:

+375298-06-05-67 WhatsApp, Viber, Telegram

Mira más:

Puedes ver una reseña en video de la casa de madera "Casa Blanca" de madera laminada encolada Archiline Houses:

Puede ver una revisión en video de la casa de madera "Mirage":

If you want to buy hvitt trehus laget av laminert finertømmer "White House" 207 m² , you can:



More from section TREHUS. SUPER TOPP 7

  • Funksjoner: :hus med terrasse, :hus med balkong, :hus med arbeidsrom
  • Bygningstype: tre-etasjes hus
  • Antall soverom: 2
  • Veggmateriale: runde tømmerstokk
Sistema er et av de første husene som ble bygget for over 10 år siden. Uvanlig design, produksjon og konstruksjon av Archiline Houses. Tanken er at trehus er av samme type, ideologisk gamle, og det er umulig å bygge et trehus som ikke kjeder seg ...
  • Funksjoner: :badstue med terrasse, :badstue med basseng
  • Bygningstype: badstue
  • Veggmateriale: limt laminert tømmer
Badehuset laget av laminert finertømmer med basseng og terrasse "Poseidon" inkluderer: et dampbad med et areal på 5 m2 med alle medfølgende rom og et avslapningsrom, hvor et stort, muntert selskap vil føle seg bra. ...
  • Funksjoner: :hus med terrasse, :hus med balkong, :hus med stekeovn
  • Bygningstype: to-etasjes hus
  • Antall soverom: 2
  • Veggmateriale: limt laminert tømmer
Et trehus fra en bar med komfyr og en terrasse "Lighthouse" inkluderer: to soverom på 17 m2, et kjøkken-stue 50 m2 og to bad 4,8 m2. Et slikt hus er perfekt for permanent opphold for en familie på 3-4 personer. ...
    Klassisk finsk trehus "Koskenkorva" med gjenkjennelige arkitektoniske linjer. Tre soverom, stue, kjøkken, garderobe, terrasse, i andre etasje - soverom, bad, balkong og loft. Prosjektet ble tilrettelagt for logger av Archiline i 2022. 286 m2. ...
    • Funksjoner: :hus med terrasse, :hus med balkong, :hus med arbeidsrom
    • Bygningstype: to-etasjes hus
    • Antall soverom: 3
    • Veggmateriale: limt laminert tømmer
    Hus med terrasse "House of the IT specialist" inkluderer: 3 soverom med separate sanitæranlegg, en romslig innglasset terrasse og kjøkken-stue. Et slikt hus passer for de som liker å ta imot gjester eller holde forretningsmøter hjemme. ...
    • Funksjoner: :hus med terrasse
    • Bygningstype: enetasjes hus
    • Antall soverom: 2
    • Veggmateriale: limt laminert tømmer
    Naturlig trehus laget av laminert finertømmer "Mirage" - et kompakt hus med 2 soverom, stue og separat kjøkken med utgang til terrassen. Det er den ideelle løsningen for de som leter etter et lite permanent hjem. ...
    • Funksjoner: :hus med terrasse
    • Bygningstype: enetasjes hus
    • Antall soverom: 2
    • Veggmateriale: limt laminert tømmer
    Skandinavisk trehus laget av laminert finertømmer "Dina's Morning" - et stort hus med en romslig stue, separat kjøkken, to soverom og bad. Dette hjemmet er ideelt for de som ikke liker små lukkede rom. ...
    • Funksjoner: :hus med terrasse
    • Bygningstype: enetasjes hus
    • Antall soverom: 2
    • Veggmateriale: limt laminert tømmer
    Et trehus laget av laminert finertømmer med terrassen "Eurodom" er et lite hus for permanent opphold for en liten familie. Huset har alt du trenger: to soverom, bad og en romslig kjøkken-stue. ...
    © 2025 ArchiLine Wooden Houses
    114-49, Necrasov str., Minsk, Republic of Belarus, 220049
                                                  

    The site is powered by Nestorclub.com