x
≡ Catalogar
Sobre nosotros Galería Contáctenos

Hus med terrasse "House of the IT specialist" 250 m²

Hus med terrasse "House of the IT specialist" 250 m²  Hus med terrasse "House of the IT specialist" inkluderer: 3 soverom med separate sanitæranlegg, en romslig innglasset terrasse og kjøkken-stue. Et slikt hus passer for de som liker å ta imot gjester eller holde forretningsmøter hjemme.
.....................................................................................................................................................................................................
.
GRUNNLEGGENDE INFORMASJON:

Antall etasjer:2Antall soverom3
Stue61,52 m2Gulvflate i alle etasjer:134,99 m2
Terrasse og balkongområde:70,12 m2Takområde:- m2
Tettbygd strøk:182 m2Pris:på forespørsel
Veggmateriale:Profilerte limte bjelker (200x185 mm) *
Takmateriale:Keramiske takstein *
Fundament:Pælegrillage med monolitisk plate *
Vindu:Tre *
* Materialer kan variere avhengig av kundens ønsker


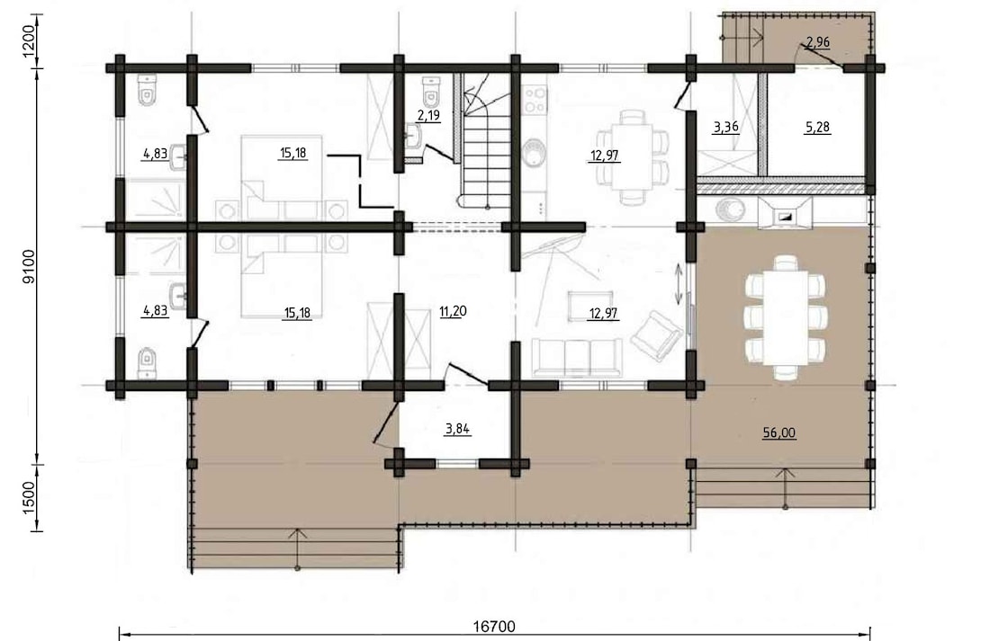
HUSPLAN:.

I første etasje er det: en vestibyle, en entré, et toalett, en kjøkken-stue, et teknisk rom, to soverom med individuelt kombinert bad, en stor veranda og en terrasse:
.

.
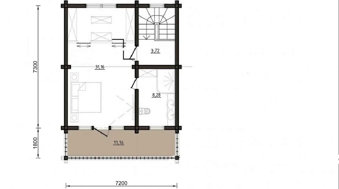
I andre etasje: hovedsoverommet med egen kombinert sanitærenhet:
.

.
KORT BESKRIVELSE AV PROSJEKTET:
.
"House of the IT specialist" er et trehus laget av laminert finertømmer, bygget etter ordre fra en vellykket deltaker i IT-bransjen, Mikhail, som umiddelbart visste hva han forventer fra hjemmet sitt. Som et resultat av det første møtet ble følgende oppgaver satt:
  • Først må huset være vakkert. Det skal være et triks, huset skal være annerledes, være bedre enn de andre, du bør ønske å leve i det, "all formuen skal smelte inn i det" - som fullstendig samsvarer med klientens livsprinsipper.
  • Det andre er helse, så det ble bestemt å designe huset av tre. Både trehuset og den miljøvennlige dekorasjonen ble laget under mottoet "Leve, sove, sunnere"
  • Tredjeplassen ble inntatt av oppgaven: "Slik at huset ligger to trinn fra kontoret." En av hovedønskene til våre IT-spesialister er nærheten til kontoret til hjemmet. Det er få mennesker som ønsker å tilbringe 1-2 timer daglig på en vei til kontordatamaskinen. Dette problemet ble løst ved å kjøpe en tomt med et gammelt hus, rive og bygge et nytt hus på denne byggeplassen.
Arbeidet resulterte i et vakkert grønnmalt hus. Den kombinerer komfort og bekvemmelighet, fra utforming til alle detaljer i interiøret. Prosjektet ble implementert av vårt selskap på nøkkelferdig basis.
.
UTSEENDE:
.
Huset kombinerer interessant asymmetrisk arkitektur med elementer og innredning i en moderne arkitektonisk stil: store vinduer, visuelt lysende fasaden og kontrasterende farger.
Alle yttervegger er dekket med grønn maling fra tysk produksjon, trevinduer - i en mer mettet nyanse av samme farge, noe som gjør fasadens fargerike palett enda mer edel og interessant. Taket har en lys grå tone og er i perfekt harmoni med fasadene:

.
Дом Айтишника .
Store terrasser og balkonger gir huset en spesiell kos. Terrassebordbelegg, behandlet med spesiell olje:

.

.
STOR 3D HJEMTUR:
.
Дом Айтишника
.
HJEMME FOTOUTFLUKT:
.
Plott. En flott utsikt fra vinduet er et veldig viktig øyeblikk for Mikhail. Han var klar til å redusere antall rom, slik at vinduene ville gi et utmerket perspektiv og utsikt over torget ved siden av huset.
Det antas at interiøret er en kategori som kan endres og gjøres om, men å fjerne utsikten fra vinduet ditt er neppe innenfor makten til både arkitekten og kunden selv.
Vi vet ikke om datavitenskapere har en dyp tilbøyelighet til denne manien, eller om det er en universell menneskelig lidenskap for skjønnhet, men vellykkede IT-snicks i USA foretrekker å bygge husene sine med utsikt over naturen:

.

.
.
Husets interiør er moderne, luksuriøst og samtidig lyst, fylt med luft og lys. Tømmervegger er dekket med en beskyttende blanding som avslører den vakre naturlige teksturen av tre:

.

.
Takene er foret med furuplanker og malt med lys kremmaling. Interiørarkitekturen understrekes av dekorative portaler:

.
Et stort kjøkken er et sted hvor du kan organisere riktige måltider. IT-folk er veldig entusiastiske mennesker, og liker ikke å kaste bort sin dyrebare tid på streifeturer inn i byen "for noe å spise".
De fleste av dem foretrekker å tenke minst mulig på mat mens de er "fraværende fra den fysiske virkeligheten." På den annen side, jo kortere tid du bruker på å lete etter mat, jo raskere beveger prosjektet seg.
Våre moderne "House of IT-spesialister" har alle forutsetninger for et slikt tidsfordriv. Den har et kjøkken med stekeovn, mikrobølgeovn, komfyr, kjøleskap og oppvaskmaskin, der de som ønsker det kan lage mat med egne hender - et ideelt alternativ for den ivrige geiken som nå ikke har noen grunn til å gå utenfor:

.

.

.
En uformell diskusjon av arbeidsmomenter når du arbeider eksternt - for dette er det viktig at huset har spesielle rom og rom. Stor stue med peis, to kjøkken, terrasser og åpne områder foran huset. Alt dette bidrar til å holde samlinger online og offline for å diskutere prosjektet privat eller kollektivt og ikke gjøre det i en tett forsamlingshall, men i en vakker stue i et tre med peis:

.

.
Et viktig spørsmål: spill og hjemmeunderholdning. Noen ganger trenger du å bli distrahert fra jobb, hvem kan argumentere med det? Å jobbe med IT er spesielt tungt, så det er bra å ha en liten, men spennende pause i dette området. I slike øyeblikk vil du reise deg, strekke bena, trekke deg litt bort fra datamaskinen. Og hva er alternativene til en røykpause, kaffepause eller kontemplasjon av landskap utenfor vinduet?
Enkle spill, for eksempel stort biljard, gir ikke bare muligheten til å ta en pause mens prosjektet blir samlet, men lar deg også konstruktivt kaste ut konkurransekraften din og det negative som akkumuleres i løpet av dagen, som er fastspent i prosessen med tett kontorinteraksjon.
Separat bemerker vi at Mikhail ikke liker treningsstudioet for fysisk trening, men biljard i peisestuen med muligheten til å spille når som helst:

.
Klienten ønsket å se store voluminøse rom og private rom i huset sitt - to delvis gjensidig eksklusive ønsker, men for moderne arkitekter er ingenting umulig.
På den ene siden er dette for Mikhail forårsaket av ønsket om å kunne trekke seg tilbake og privat gruble over en vanskelig idé eller slappe av med et problem i en tilbakelent stilling, i stedet for å henge på arbeidsplassen foran en skjerm som ikke er nødvendig (for øyeblikket).
På den annen side liker han "å ikke føle presset fra taket over hodet." Sistnevnte er problemet med typiske kontorer, vanligvis i sentrum. Mikhail ønsket å føle seg fri, han liker ikke rotet i interiøret, og spesielt hvis noen blir tvunget til å krenke hans personlige plass, puste ned på baksiden av hodet.
Stort rom i første etasje med eget bad:

.

.

.
Det andre store rommet i første etasje, også med separat bad:

.

.

.
Huset har en klar automatisering av varme- og belysningsprosesser. Dataforskere elsker å gjøre hjemmet sitt til et miniatyr "flight control center". IT-folk elsker å kontrollere alt i livet, og mange store og moderne skjermer og et moderne kontrollsystem som er plassert i hele huset, bør hjelpe til med dette:

.

.

.
Første etasje bad, nydelig:
Дом Айтишника .
Дом Айтишника
.

.

.


En stilig trapp med utskårne rekkverk ble et viktig element. Denne komfortable og trygge designen gir interiøret et grafisk preg. Takket være trappene fikk huset et eget liv og ble et ideelt hjem for enkeltpersoner og en stor familie, noe som gjorde eieren og hans gjester fornøyde med livet:

.

.

.
Et annet sterkt ønske fra klienten: sunn søvn i huset! Oppgaven var å lage et stort soverom i andre etasje med god lydisolering og mørkning slik at du kunne få nok søvn etter søvnløse netter:

.

.

.

.
Et slikt hus kan bygges hvor som helst i verden, i Europa, spesielt i Tyskland, takket være det europeiske sertifikatet for produktkvalitet, som vårt firma eier.


Bygningstype
to-etasjes hus
Antall soverom
3
Veggmateriale
limt laminert tømmer
Funksjoner:
hus med terrasse, hus med arbeidsrom, hus med balkong


We speak english, russian and german:

+375298-06-05-67 WhatsApp, Viber, Telegram

Mira más:

Puedes ver una reseña en video de la casa de madera "Casa Blanca" de madera laminada encolada Archiline Houses:

Puede ver una revisión en video de la casa de madera "Mirage":

Si deseas comprar hus med terrasse "House of the IT specialist" 250 m² , puedes:



Más de la sección TREHUS. SUPER TOPP 7

  • Funksjoner: :hus med terrasse, :hus med balkong, :hus med arbeidsrom
  • Bygningstype: tre-etasjes hus
  • Antall soverom: 2
  • Veggmateriale: runde tømmerstokk
Sistema er et av de første husene som ble bygget for over 10 år siden. Uvanlig design, produksjon og konstruksjon av Archiline Houses. Tanken er at trehus er av samme type, ideologisk gamle, og det er umulig å bygge et trehus som ikke kjeder seg ...
  • Funksjoner: :badstue med terrasse, :badstue med basseng
  • Bygningstype: badstue
  • Veggmateriale: limt laminert tømmer
Badehuset laget av laminert finertømmer med basseng og terrasse "Poseidon" inkluderer: et dampbad med et areal på 5 m2 med alle medfølgende rom og et avslapningsrom, hvor et stort, muntert selskap vil føle seg bra. ...
  • Funksjoner: :hus med terrasse, :hus med balkong, :hus med stekeovn
  • Bygningstype: to-etasjes hus
  • Antall soverom: 2
  • Veggmateriale: limt laminert tømmer
Et trehus fra en bar med komfyr og en terrasse "Lighthouse" inkluderer: to soverom på 17 m2, et kjøkken-stue 50 m2 og to bad 4,8 m2. Et slikt hus er perfekt for permanent opphold for en familie på 3-4 personer. ...
    Klassisk finsk trehus "Koskenkorva" med gjenkjennelige arkitektoniske linjer. Tre soverom, stue, kjøkken, garderobe, terrasse, i andre etasje - soverom, bad, balkong og loft. Prosjektet ble tilrettelagt for logger av Archiline i 2022. 286 m2. ...
    • Funksjoner: :hus med terrasse, :hus med balkong
    • Bygningstype: to-etasjes hus
    • Antall soverom: 5
    • Veggmateriale: limt laminert tømmer
    Trehus laget av laminert finertømmer "White House" inkluderer: 5 soverom, kjøkken-stue 58 m2 og to bad. Et slikt hus er perfekt for permanent opphold for en stor vennlig familie. ...
    • Funksjoner: :hus med terrasse
    • Bygningstype: enetasjes hus
    • Antall soverom: 2
    • Veggmateriale: limt laminert tømmer
    Naturlig trehus laget av laminert finertømmer "Mirage" - et kompakt hus med 2 soverom, stue og separat kjøkken med utgang til terrassen. Det er den ideelle løsningen for de som leter etter et lite permanent hjem. ...
    • Funksjoner: :hus med terrasse
    • Bygningstype: enetasjes hus
    • Antall soverom: 2
    • Veggmateriale: limt laminert tømmer
    Skandinavisk trehus laget av laminert finertømmer "Dina's Morning" - et stort hus med en romslig stue, separat kjøkken, to soverom og bad. Dette hjemmet er ideelt for de som ikke liker små lukkede rom. ...
    • Funksjoner: :hus med terrasse
    • Bygningstype: enetasjes hus
    • Antall soverom: 2
    • Veggmateriale: limt laminert tømmer
    Et trehus laget av laminert finertømmer med terrassen "Eurodom" er et lite hus for permanent opphold for en liten familie. Huset har alt du trenger: to soverom, bad og en romslig kjøkken-stue. ...
    © 2025 ArchiLine Wooden Houses
    114-49, Necrasov str., Minsk, Republic of Belarus, 220049
                                                  

    El sitio funciona con Nestorclub.com