x
≡ Catalogar
Sobre nosotros Galería Contáctenos

डबल लकड़ी के बीम

video
डबल लकड़ी के बीम  डबल लॉग हाउस या लॉग हाउस? - निर्माण शुरू करने से पहले यह अक्सर पूछे जाने वाला प्रश्न है! नुकसान और फायदे की तुलना कैसे करें? कीमतें? और अंत में क्या बनाना है, एक डबल लॉग हाउस या पूरी तरह से लकड़ी के घर, यहां तक ​​कि एक ही कीमत पर? जवाब स्पष्ट है, निश्चित रूप से एक लॉग हाउस!
यूरोप के ठंडे क्षेत्रों में, पतली लकड़ी से बने घर लंबे समय तक कम तापमान का सामना नहीं करते हैं, इसलिए वे या तो सक्रिय रूप से गर्म होते हैं या अंदर से अछूता रहते हैं। जो पारंपरिक निर्माण और रखरखाव से अधिक महंगा है।
डबल बार समस्या को हल करने का एक प्रयास है। वास्तव में, यह एक फ्रेम हाउस है, जिसमें से सैंडविच दोनों तरफ लकड़ी है, और अंदर एक हीटर है। डबल लकड़ी के बीम
ऐसी संरचना के लिए मानक आयाम निम्नानुसार हैं। एक डबल लकड़ी की दीवार में 80x150 के क्रॉस-सेक्शन के साथ समानांतर बीम के दो सेट होते हैं, जिसके बीच एक 100-मोटी इन्सुलेशन लगाई जाती है। इन्सुलेशन के साथ डबल सूखी प्रोफाइलर्ड लकड़ी या टुकड़े टुकड़े में लिबास से बना एक डबल दीवार -30 डिग्री सेल्सियस से + 30 डिग्री सेल्सियस तक के तापमान पर परिसर की आरामदायक थर्मल विशेषताओं को प्रदान करता है।
बाहर और अंदर लकड़ी की मोटाई 80 मिमी (दीवार में केवल 160) और 100 के अंदर इन्सुलेशन है। और यहां अर्थव्यवस्था के सवाल शुरू होते हैं। एक दोहरी दीवार के अंदर बिछाने के साथ इन्सुलेशन में भी पैसे खर्च होते हैं, औसतन एक बार की कीमत का 15-20%। यह आपको दीवार का निर्माण करने की अनुमति देता है 160 + 20% = 192। पर्याप्त से अधिक, 200 लकड़ी के घर की दीवार की मोटाई का मुख्य आयाम है।
मध्य पट्टी के लिए बार की मानक मोटाई 180 और ऊपर से है। यह पेड़ के छिद्रों के माध्यम से हवा के हीटिंग के लिए और माइक्रोक्रिकुलेशन के लिए काफी पर्याप्त है।
हीटर के साथ एक जटिल तकनीक का उपयोग क्यों करें जिसके अंदर बहुत सारे परिचालन मुद्दे हैं - कृन्तकों, पारिस्थितिकीविदों, दीवार के अंदर उप-विभाजन। निर्माता व्यावहारिक रूप से वाष्प अवरोध फिल्मों का उपयोग नहीं करते हैं, और यह अंदर निरंतर संघनन से भरा होता है। वैसे, एक उच्च गुणवत्ता वाली फिल्म काम के साथ एक डबल बार की कीमत को तेज करती है। जो आमतौर पर अकथनीय है।
यह अभी भी क्यों निर्माण और निर्माण कर रहा है? यह सरल है - बाहरी और आंतरिक दीवारों और सस्ते इन्सुलेशन के लिए 45 का एक बोर्ड (पहले से ही लकड़ी नहीं) - इसलिए उपभोक्ता के लिए कीमत पहले ही कम हो गई है। लेकिन यह गुणवत्ता और कारण के न्यूनतम मानकों से विचलन है।
और इसे आउटपुट पर क्या मिलता है? उन लोगों के इंटरनेट से समीक्षा करें जिन्होंने एक डबल बार से घर बनाया था।
"घर बैठना शुरू कर दिया। किसी ने 2% के बारे में समीक्षा में लिखा था, लेकिन ऊंचाई के साथ, उदाहरण के लिए, 7 मीटर, यह तैयार घर का 14 संकोचन है !!! यह मेरे लिए अच्छा है! घर के छोर क्लैडिंग के साथ कवर किए गए थे - यह हर जगह फट गया! घर के बाहर, बक्से बाहर प्रकाश में चले गए - तुला! खिड़की के खुलने के करीब, सब कुछ फट गया, अलमारी लगभग टूट गई, दरवाजे बंद होने लगे !! मैं विश्वास करना चाहूंगा कि सिकुड़न खत्म हो गई है। समय बताएगा .. खैर, और आंतरिक सजावट के लिए वित्तीय लागतें .... एक कंपनी चुनें। उन घरों को देखें जो पहले से बने हैं। मेरा घर बर्बाद हो गया था, जैसा कि उन्होंने बाद में समझाया - निर्माण का एक जटिल रूप।
"दरार के बारे में। जैसे ही उन्होंने हीटिंग चालू किया, दूसरी मंजिल पर, दरवाजे के ऊपर आंतरिक दीवारों पर, पूरे परिधि के साथ एक खाई दिखाई दी। मैं फर्म की तरफ भागा। तस्वीरें दिखाईं, चिल्लाए। हमें अपने घरों की तस्वीरें मिलीं जिन्हें हमने अपने लिए बनाया था। एक ही कहानी है। समझाया - जब हीटिंग चालू होता है, तो आंतरिक दीवारें बाहरी लोगों की तुलना में तेजी से सूख जाती हैं। गर्मियों में, सब कुछ जगह में गिर जाएगा। गर्मियों की प्रतीक्षा में "
"एक उच्च गुणवत्ता वाला डबल-बार घर सस्ते में नहीं निकलेगा, लेकिन मैंने गुणवत्ता के लिए भुगतान किया, मैंने इस पर बचत नहीं की। नतीजतन, यह एक ठोस पट्टी से घर की तरह निकला, अगर अधिक महंगा नहीं "
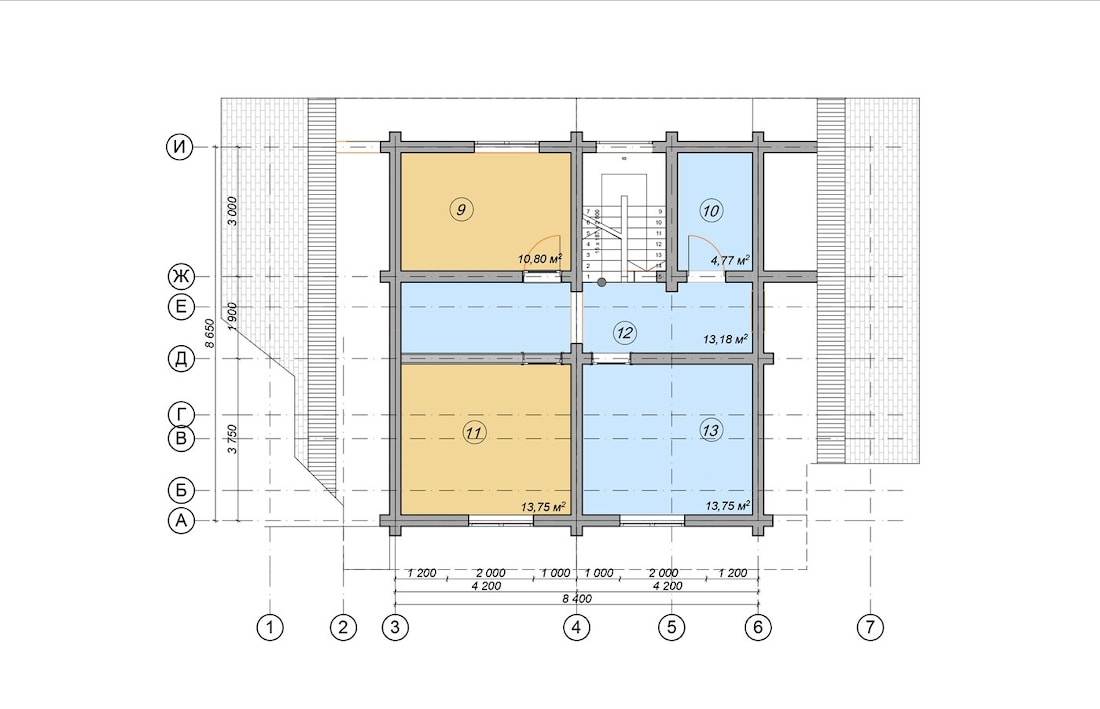
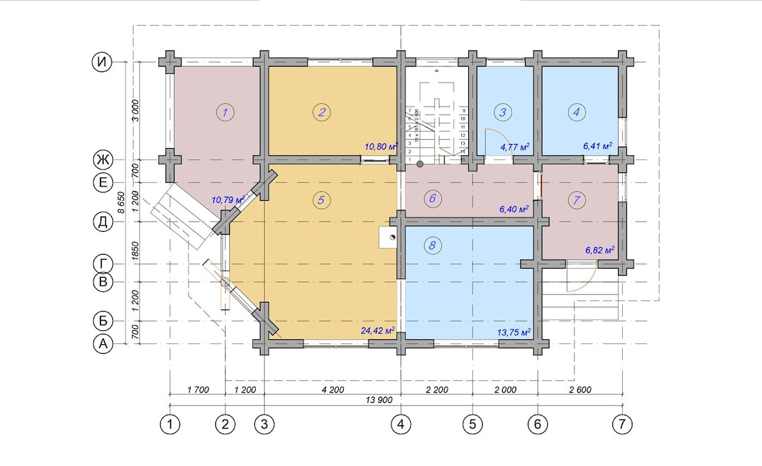
कंपनी "आर्किलीन" लकड़ी के मकानों के निर्माण में तकनीक "डबल बार" को छोड़ने का तरीका चला गया है। हम डबल लकड़ी से बने घरों की तस्वीरें पेश नहीं करेंगे, लेकिन हम 140 वर्ग के कुल क्षेत्रफल के साथ घर को "डबल्डम" दिखाएंगे। लकड़ी की दीवारें: डबल लकड़ी के बीम डबल लकड़ी के बीम डबल लकड़ी के बीम डबल लकड़ी के बीम डबल लकड़ी के बीम डबल लकड़ी के बीम डबल लकड़ी के बीम डबल लकड़ी के बीम डबल लकड़ी के बीम डबल लकड़ी के बीम डबल लकड़ी के बीम. घर का लेआउट डबल लकड़ी के बीम. घर का लेआउट





We speak english, russian and german:

+375298-06-05-67 WhatsApp, Viber, Telegram

Mira más:

Puedes ver una reseña en video de la casa de madera "Casa Blanca" de madera laminada encolada Archiline Houses:

Puede ver una revisión en video de la casa de madera "Mirage":

Si deseas comprar डबल लकड़ी के बीम , puedes:



Más de la sección उपयोगी जानकारी

    एक ठोस लॉग हाउस में जीवन आरामदायक होगा, क्योंकि ऐसा निवास न तो नमी जानता है, न ही ठंडा, न ही सामान। हम बहुत लंबे समय तक लकड़ी के निर्माण के फायदों के बारे में बात कर सकते हैं, क्योंकि यह सामग्री प्रसंस्करण के लिए अच्छी तरह से उधार देती है, इसमें ...
      "आर्किलाइन" आरी की लकड़ी के थोक, डिजाइन, उत्पादन और लकड़ी के मकानों, होटलों, रेस्तरां और सौना से लेकर गोल लॉग, चौकोर प्रोफाइल वाली लकड़ी और सरेस से जोड़ा हुआ लकड़ी के निर्माण में माहिर हैं। ArchiLine Ltd. 2004 से सफलतापूर्वक लकड़ी के निर्माण बाजार ...
        चिपके टुकड़े टुकड़े में लकड़ी टुकड़े टुकड़े में लिबास के निर्माण के लिए लकड़ी मनुष्य के लिए उपलब्ध सबसे पुरानी निर्माण सामग्री में से एक है। इसके आवेदन का अभ्यास दसियों शताब्दियों तक उचित है। हालांकि, मानव हाथों में भी ऐसी सार्वभौमिक सामग्री पूर्णता ...
          डबल सरेस से जोड़ा हुआ टुकड़े टुकड़े में लकड़ी सरेस से जोड़ा हुआ टुकड़े टुकड़े में लकड़ी कई देशों में अपनी ताकत, सौंदर्य और थर्मल इन्सुलेशन गुणों के लिए जाना जाता है। डबल चिपके टुकड़े टुकड़े में लकड़ी के उत्पादन के लिए तकनीक में लैमेलस से पहले से ...
            पता: 220049, Belarus, Minsk, Nekrasova str. 114, office 49. विदेश व्यापार विशेषज्ञ: Victoria Kuznetsova +375 29 620 08 85 (Viber, WhatsApp, Telegram) कीमतें। अस्तर बोर्ड, फर्श बोर्ड, बेसबोर्ड, प्लाईवुड: № Product list, dimensions, section in mm ...
              आर्चिलीन हाउस यूरोपीय संघ, मध्य पूर्व, अफ्रीका और एशिया के लिए लकड़ी के मकानों, घरेलू और वाणिज्यिक प्रयोजनों के लिए अन्य इमारतों के सेट का निर्यात करते हैं। डिलीवरी सीधे और डीलरों के माध्यम से की जाती है Archiline लकड़ी का घर एक उच्च गुणवत्ता वाला ...
                दुनिया के कई हिस्सों में भूकंप में वृद्धि के साथ, कई घर मालिक यह पता लगाने की कोशिश कर रहे हैं कि वे अपने घर को इस प्राकृतिक घटना से बचाने के लिए क्या कर सकते हैं। जब आपको अपने घर को निर्माण के दौरान क्रस्टल झटकों से बचाने की आवश्यकता होती है, तो ...
                  भूकंप प्रतिरोधी लकड़ी के घरों का निर्माण उच्च भूकंपीय गतिविधि के एक क्षेत्र में, भूकंप प्रतिरोधी घरों के निर्माण की एक नई विधि का आविष्कार किया गया है। उच्च भूकंपीय गतिविधि वाले घरों के बड़े पैमाने पर विनाश के कारणों का पता भूकंप के पुनर्निर्माण से ...
                    2019 में लकड़ी के घरों के उत्पादन के लिए यूरोपीय प्रमाण पत्र का नवीनीकरण किया गया कंपनी "आर्चिलिन" के पास लकड़ी के मकानों ETA 14/0367 के उत्पादन के लिए एक यूरोपीय प्रमाण पत्र है और सहयोग के लिए यूरोप में निर्यात करने में रुचि रखने वाले निर्माताओं और ...
                      लकड़ी की खिड़कियों के पक्ष में स्पष्ट तर्क उनके सौंदर्य गुण हैं। लकड़ी की खिड़कियां फर्नीचर, लकड़ी की छत के साथ संयुक्त हैं, वे परिष्कार और आधुनिक कार्यक्षमता लाती हैं। प्लास्टिक की खिड़कियों के सफेद बनावट गर्मी और आराम की भावना को छिपाते हैं। ...
                        लकड़ी के घरों की बिक्री तकनीक। फ्रैंचाइज़ी के साथ लकड़ी के घरों को बेचने का व्यवसाय कैसे शुरू करें। लकड़ी के घरों को बेचने का व्यवसाय एक आशाजनक दिशा है। उद्यम के काम को सही ढंग से व्यवस्थित करने के बाद, आप जल्दी से पेबैक में पहुंचेंगे। समझें कि क्या ...
                          प्राकृतिक नमी की प्रमाणित लकड़ी जब एक profiled बार से घर बनाने की योजना है, तो हम लागतों की मात्रा की गणना करते हैं, जिनमें से सबसे बड़ी विशिष्ट मात्रा दीवार निर्माण सामग्री की खरीद पर खर्च की जाती है। एक प्रोफाइल बार की कीमत एक महत्वपूर्ण कारक पर ...
                          © 2025 ArchiLine Wooden Houses
                          114-49, Necrasov str., Minsk, Republic of Belarus, 220049
                                                                        

                          El sitio funciona con Nestorclub.com